Bénéficiez des services de nos partenaires locaux soigneusement sélectionnés
pour vous accompagner dans votre parcours d'achat immobilier

Maison 83m² à gap

— Gap 05000 —
324 000 €
83 m² / 480 m²
4 pièces
jardin

Nos partenaires locaux
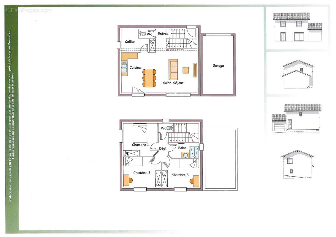
Découvrez votre future maison jumelée par le garage, conçue pour allier confort et modernité, en collaboration avec nos partenaires de confiance. Cette maison de plain-pied vous offre un cadre de vie idéal, avec un salon-séjour spacieux et lumineux.
Elle se compose de 3 chambres confortables, la salle d'eau moderne est conçue pour votre bien-être.
Profitez d'un chauffage au sol par pompe à chaleur, garantissant une chaleur douce et homogène tout en respectant les normes de la réglementation environnementale RE2020. Cette maison est conçue pour être éco-responsable, vous permettant de réaliser des économies d'énergie tout en préservant l'environnement.
Ne manquez pas cette opportunité de construire la maison de vos rêves dans un cadre paisible et agréable. Contactez-nous dès aujourd'hui pour plus d'informations et pour discuter de votre projet !
Honoraires d'agence charge acquéreur = avantage fiscal (pas de frais de notaire sur nos honoraires).
Voir plus

Référence: 3877

Prêt immobilier

Vous souhaitez connaître votre capacité d’emprunt et trouver le meilleur crédit immobilier ?
Réaliser une simulation gratuite

Maison à GAP
Maison à GAP
Maison à GAP
Maison à GAP
Ce site est protégé par reCAPTCHA la Politique de confidentialité et les Conditions d’utilisation de Google s’appliquent.
Obtenir un prêt immobilier au meilleur taux ?

En poursuivant votre navigation sans modifier vos paramètres, vous acceptez l'utilisation de cookies susceptibles de réaliser des statistiques de visite. Cliquez ici pour plus d'informations