Bénéficiez des services de nos partenaires locaux soigneusement sélectionnés
pour vous accompagner dans votre parcours d'achat immobilier

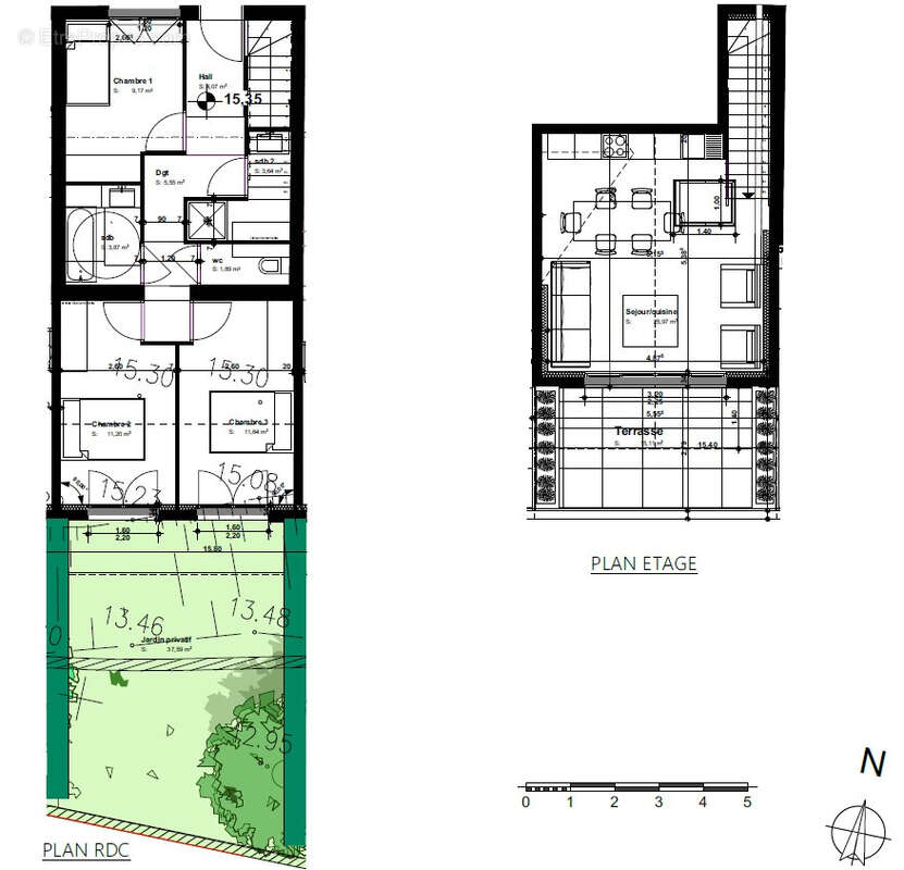
Vente appartement t4 duplex neuf sainte-maxime plage à pied

— Sainte-Maxime 83120 —
769 451 €
77 m² / 38 m²
4 pièces
parkingbalcon/terrassejardin

Nos partenaires locaux
Programme Neuf de 3 maisons Duplex à Sainte-Maxime à quelques pas de la plage de la Nartelle, un mariage parfait entre le charme de l'ancien et le confort du moderne: la Demeure Azuro, avec ses prestations soignées et sa Vue mer à seulement 300 mètres des plages de la Nartelle. Chaque T4 dispose d'une belle terrasse à l'étage, permettant une belle luminosité et une Jolie vue mer. Épousant l'esthétisme des villages traditionnels, la propriété est en harmonie avec son environnement très arboré sur 1300m2, qui valorise les tons naturels et chaleureux de la maison. Tout en magnifiant le charme préservé de la maison, les 3 duplex sont équipés de prestations premium: * Domaine privé, sécurisé (visiophone, vigik, digicode…) * 2 places de stationnement en sus pour chaque logement avec pré câblage pour recharge de véhicules électriques * Grandes pièces de vie ouvertes sur de vastes terrasses et jardins privatifs paysagés * Baies coulissantes grand format en aluminium * Carrelage grès cérame Porcelanosa en 80x80 dans les pièces de vie * Sanitaires de la même gamme * Faïence effet marbre dans les salles de bains * Parquet en chêne dans les chambres * Placards entièrement équipés * Système de chauffage et rafraîchissement par pompe à chaleur individuelle * Production d'eau chaude par ballon thermodynamique * Domotique dernier cri * Vélos électriques à disposition des résidents Nouvelle réalisation à découvrir rapidement! Visiophonie possible sur demande grâce à la maquette 3D et visites virtuelles des appartements.
Voir plus

Bien en copropriété. Nombre de lots : 3.
Honoraires à la charge du vendeur.
Barème des honoraires

Prêt immobilier

Vous souhaitez connaître votre capacité d’emprunt et trouver le meilleur crédit immobilier ?
Réaliser une simulation gratuite

Appartement à SAINTE-MAXIME
Appartement à SAINTE-MAXIME
Appartement à SAINTE-MAXIME
Appartement à SAINTE-MAXIME
Appartement à SAINTE-MAXIME
Ce site est protégé par reCAPTCHA la Politique de confidentialité et les Conditions d’utilisation de Google s’appliquent.
Obtenir un prêt immobilier au meilleur taux ?

En poursuivant votre navigation sans modifier vos paramètres, vous acceptez l'utilisation de cookies susceptibles de réaliser des statistiques de visite. Cliquez ici pour plus d'informations