Appartement 62m² à toulon

— Toulon 83100 —
190 000 €
62 m²
3 pièces
ascenseur

Iad France - Aurelia Denoual vous propose : T3 récent - terrasse - ascenseur - parking privatif - vue dégagée
Découvrez cet appartement T3 idéalement situé dans une résidence récente et sécurisée construite en 2010. Situé au 1er étage avec ascenseur, ce bien allie confort, modernité et praticité et est situé au calme.

Descriptif de l'appartement :
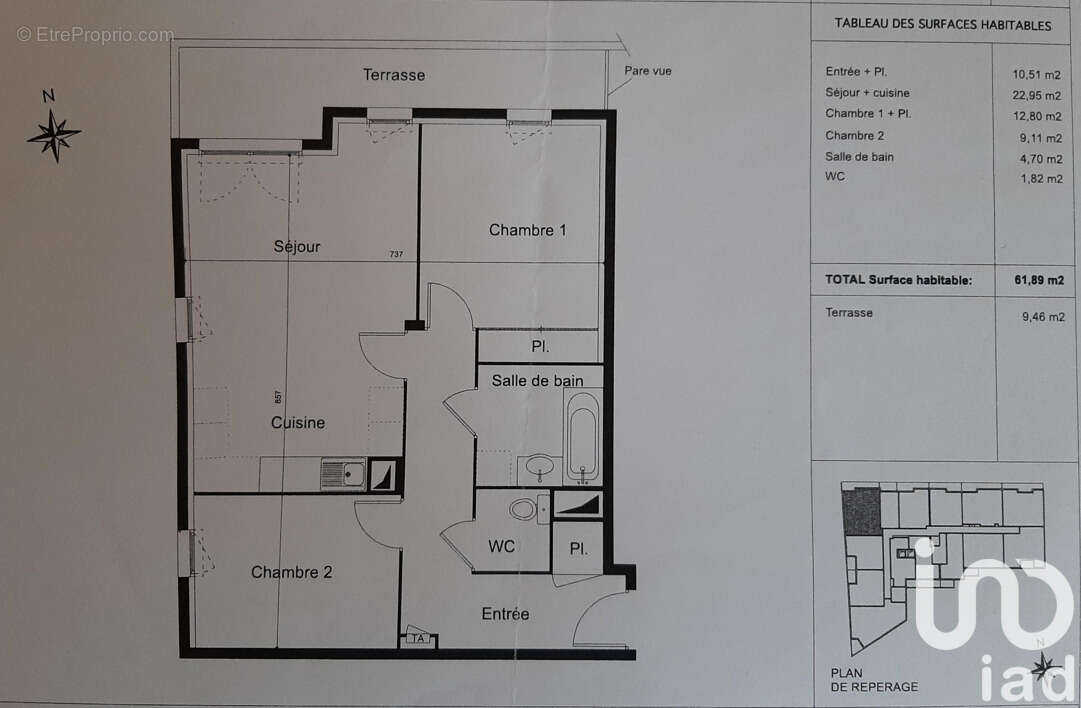
Surface : 62 m²
Pièce de vie : Spacieux séjour avec cuisine ouverte, offrant un espace convivial et chaleureux. Ce séjour donne accès à une belle terrasse de plus de 10 m², exposée sur un parc avec une vue agréable et dégagée.
Chambres : Deux chambres confortables, idéales pour une famille ou un couple avec bureau ou dressing.
Salle de bain et WC : Salle de bain moderne et WC indépendants pour plus de praticité.
Parking : Une place de parking privative et numérotée en sous-sol, accessible facilement et en toute sécurité.

La résidence est parfaitement sécurisée et offre un accès par digicode et interphone, garantissant sérénité et tranquillité aux habitants.

Le quartier de Saint-Jean-du-Var est réputé pour son cadre de vie agréable et sa proximité avec toutes les commodités : commerces, écoles, transports en commun et accès facile au centre-ville de Toulon. C'est un secteur dynamique et convivial, parfait pour les familles ou les actifs souhaitant allier vie urbaine et calme résidentiel. Vous profiterez également des nombreux espaces verts et de l'ambiance de quartier, tout en restant à quelques minutes des plages et des principaux axes routiers.

Pourquoi visiter cet appartement ?

Résidence récente avec prestations modernes.
Emplacement pratique dans un quartier vivant et dynamique.
aucun travaux
environnement verdoyant et calme


Contactez-moi dès aujourd'hui pour organiser une visite et découvrir ce bien qui ne manquera pas de vous séduire !

La presente annonce immobiliere vise 2 lots situés dans une copropriété de 290 lots au total et ne faisant l'objet d'aucune procédure en cours citée à l'article L. 721-1 du code de la construction et de l'habitation. Montant moyen mensuel de charges déclaré par le vendeur : 108¤ par mois (soit 1296 ¤ annuel). Honoraires d'agence à la charge du vendeur.
Information d'affichage énergétique sur ce bien : classe ENERGIE C indice 149 et classe CLIMAT C indice 29. Les informations sur les risques auxquels ce bien est exposé, y compris l'obligation légale de débroussaillement, sont disponibles sur le site Géorisques : www.georisques.gouv.fr.
La présente annonce immobilière a été rédigée sous la responsabilité éditoriale de Mme Aurelia Denoual mandataire indépendant en immobilier (sans détention de fonds), agent commercial de la SAS I@D France immatriculé au RSAC de TOULON sous le numéro 802573980, titulaire de la carte de démarchage immobilier pour le compte de la société I@D France SAS.
Informations LOI ALUR :
Soumis au régime de copropriété.
Nombre de lots : 290.
Quote part annuelle(moyenne) : 1296 euros.
Honoraires charge vendeur. (gedeon_6727_30246672)
Voir plus

Référence: 1644928
Bien en copropriété. Nombre de lots : 290. Charges de copropriété : 1296 €.
Honoraires à la charge du vendeur.
DPE
A
B
C
D
E
F
G
GES
A
B
C
D
E
F
G

Prêt immobilier

Vous souhaitez connaître votre capacité d’emprunt et trouver le meilleur crédit immobilier ?
Réaliser une simulation gratuite

Photo 1 - Appartement à TOULON
Photo 1
Photo 2 - Appartement à TOULON
Photo 2
Photo 3 - Appartement à TOULON
Photo 3
Photo 4 - Appartement à TOULON
Photo 4
Photo 5 - Appartement à TOULON
Photo 5
Photo 6 - Appartement à TOULON
Photo 6
Photo 7 - Appartement à TOULON
Photo 7
Photo 8 - Appartement à TOULON
Photo 8
Photo 9 - Appartement à TOULON
Photo 9
Ce site est protégé par reCAPTCHA la Politique de confidentialité et les Conditions d’utilisation de Google s’appliquent.
Obtenir un prêt immobilier au meilleur taux ?

En poursuivant votre navigation sans modifier vos paramètres, vous acceptez l'utilisation de cookies susceptibles de réaliser des statistiques de visite. Cliquez ici pour plus d'informations