Maison noble du xviie siècle, au calme de la campagne

— Saint-Martin-Des-Pres 22320 —
348 000 €
195 m² / 2 144 m²
6 pièces

Votre conseiller immobilier Noovimo [Coordonnées masquées] vous propose :
Maison noble du XVIIe siècle à 30 minutes de Saint-Brieuc composée:

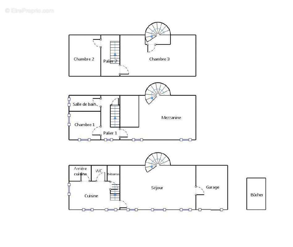
Rez-de-chaussée :

Cuisine aménagée et équipée : Une cuisine fonctionnelle, alliant l'authenticité de l'époque avec des équipements modernes.
Arrière-cuisine/buanderie : Une zone pratique pour les tâches ménagères et le stockage.
Séjour avec cheminée : Un espace de vie élégant et chaleureux, centré autour d'une cheminée ouverte, typique des maisons de cette époque.
WC : Des commodités modernes au rez-de-chaussée.

Pièce annexe avec baie vitrée et une porte communiquant avec le salon, pouvant être transformé en chambre parentale.

Premier étage :

Salon avec poêle : Un espace de détente supplémentaire, peut-être avec un poêle à bois pour ajouter une touche de confort.
Chambre : Une chambre principale avec des éléments d'époque, comme des poutres apparentes.
Salle d'eau et WC : Une salle de bains attenante à la chambre, offrant un certain luxe.

Second étage :

Chambre : Une autre chambre spacieuse, peut-être destinée à des invités ou à d'autres membres de la famille.
Grande pièce (dortoir) : Une salle polyvalente, pouvant servir de dortoir pour des invités occasionnels, d'espace de loisirs ou de bureau.

La couverture de chaume donne à la maison une ambiance pittoresque, tandis que les matériaux en pierre et les éléments architecturaux du XVIIe siècle ajoutent un caractère noble et historique.
L'ensemble de la propriété reflète un mélange harmonieux entre l'authenticité de l'époque et le confort moderne, créant ainsi un lieu unique et plein de charme.
Chauffage avec un poêle à pellets. Deux terrains complètent ce bien.
Prix de vente 335 000 EUR + 13000 EUR d'honoraires. Soit 348 000 EUR honoraires inclus. Honoraires à la charge de l'acquéreur. Nos honoraires sont consultables sur : www.noovimo.fr. Votre agent commercial inscrit au RSAC de Saint brieuc No RSAC 818 058166.
'Les informations sur les risques auxquels ce bien est exposé sont disponibles sur le site Géorisques http://www.georisques.gouv.fr'
Pour voir toutes mes annonces : https://pholivier.noovimo.fr/fr

Cette annonce vous est proposée par OLIVIER Philippe - - NoRSAC: 818058166, Enregistré à Greffe du tribunal de commerce de SAINT BRIEUC - Annonce rédigée et publiée par un Agent Mandataire -
Voir plus

Référence: 141_PHR1-0018002
Honoraires d'agence de 3.88% à la charge de l'acquéreur
DPE
A
B
C
D
E
F
G
GES
A
B
C
D
E
F
G

Prêt immobilier

Vous souhaitez connaître votre capacité d’emprunt et trouver le meilleur crédit immobilier ?
Réaliser une simulation gratuite

Maison à SAINT-MARTIN-DES-PRES
Maison à SAINT-MARTIN-DES-PRES
Maison à SAINT-MARTIN-DES-PRES
Maison à SAINT-MARTIN-DES-PRES
Maison à SAINT-MARTIN-DES-PRES
Maison à SAINT-MARTIN-DES-PRES
Maison à SAINT-MARTIN-DES-PRES
Maison à SAINT-MARTIN-DES-PRES
Maison à SAINT-MARTIN-DES-PRES
Maison à SAINT-MARTIN-DES-PRES
Maison à SAINT-MARTIN-DES-PRES
Maison à SAINT-MARTIN-DES-PRES
Maison à SAINT-MARTIN-DES-PRES
Maison à SAINT-MARTIN-DES-PRES
Maison à SAINT-MARTIN-DES-PRES
Maison à SAINT-MARTIN-DES-PRES
Maison à SAINT-MARTIN-DES-PRES
Maison à SAINT-MARTIN-DES-PRES
Maison à SAINT-MARTIN-DES-PRES
Maison à SAINT-MARTIN-DES-PRES
Maison à SAINT-MARTIN-DES-PRES
Maison à SAINT-MARTIN-DES-PRES
Maison à SAINT-MARTIN-DES-PRES
Maison à SAINT-MARTIN-DES-PRES
Maison à SAINT-MARTIN-DES-PRES
Maison à SAINT-MARTIN-DES-PRES
Ce site est protégé par reCAPTCHA la Politique de confidentialité et les Conditions d’utilisation de Google s’appliquent.
Obtenir un prêt immobilier au meilleur taux ?

En poursuivant votre navigation sans modifier vos paramètres, vous acceptez l'utilisation de cookies susceptibles de réaliser des statistiques de visite. Cliquez ici pour plus d'informations