Bénéficiez des services de nos partenaires locaux soigneusement sélectionnés
pour vous accompagner dans votre parcours d'achat immobilier

Fontenay sous bois en exclusivité immeuble de 200 m2 - pharmacie + 3 appartements

— Fontenay-Sous-Bois 94120 —
1 195 000 €
200 m²

Nos partenaires locaux


Immeuble de 4 lots avec une surface totale de 200 m2 :
Rez-de-chaussée (RDC) :

Surface : 73 m2 + cave 45 m2
Usage actuel : Pharmacie (la licence d’exploitation est attachée à l’immeuble)
DPE : F
Loyer actuel (avec étage 1) : 3 138 € (hors charges)
L'estimation du coût annuel énergétique : 5247 €



Étage 1 :

Surface : 44 m2
DPE : E
Inclus dans le loyer RDC.


L'estimation du coût annuel énergétique : 1400 - 1950 €



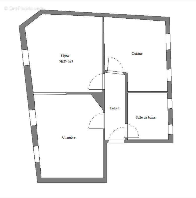
Étage 2 :

Surface : 46 m2
DPE : F
Loyer : estimé 1200 € (hors charges)


L'estimation du coût annuel énergétique : 1450 -1950 €



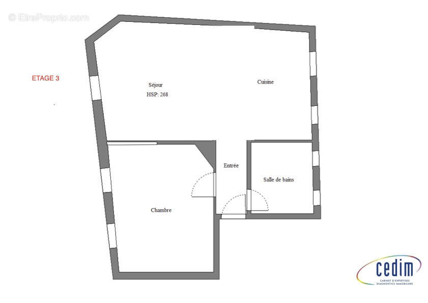
Étage 3 :

Surface : 35 m2
DPE : G
Loyer : estimé 1000 € (hors charges)


L'estimation du coût annuel énergétique : 1950 - 2680 €



Année de construction : 1930
Localisation : Rue Notre Dame
(devis travaux d'isolation disponible)
L'estimation du montant du loyer pour l'immeuble est entièrement loué test de 5338 euros par mois.
Taxe Foncière :4174 €
L'estimation des coûts annuels : 9995 € par an Prix moyens des énergies indexés au 1er janvier 2021 ;
Le prix de vente total est de 1 195 000 euros ; Les honoraires sont à la charge du vendeur ; Les informations sur les risques auxquels ce bien est exposé sont disponibles sur le site Géorisques : http//www.georisques.gouv.fr ;


Voir plus

Référence: 534
Honoraires à la charge du vendeur.
Barème des honoraires
DPE
A
B
C
D
E
F
G
GES
A
B
C
D
E
F
G

Prêt immobilier

Vous souhaitez connaître votre capacité d’emprunt et trouver le meilleur crédit immobilier ?
Réaliser une simulation gratuite

Appartement à FONTENAY-SOUS-BOIS
Appartement à FONTENAY-SOUS-BOIS
Appartement à FONTENAY-SOUS-BOIS
Appartement à FONTENAY-SOUS-BOIS
Appartement à FONTENAY-SOUS-BOIS
Appartement à FONTENAY-SOUS-BOIS
Ce site est protégé par reCAPTCHA la Politique de confidentialité et les Conditions d’utilisation de Google s’appliquent.
Obtenir un prêt immobilier au meilleur taux ?

En poursuivant votre navigation sans modifier vos paramètres, vous acceptez l'utilisation de cookies susceptibles de réaliser des statistiques de visite. Cliquez ici pour plus d'informations