Bénéficiez des services de nos partenaires locaux soigneusement sélectionnés
pour vous accompagner dans votre parcours d'achat immobilier

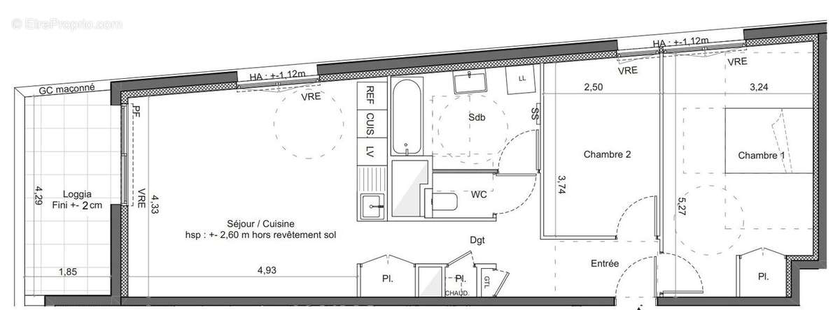
Appartement 68m² à merignac

— Merignac 33700 —
298 000 €
68 m²
3 pièces
parkingbalcon/terrasseascenseuraccès handicapé

Nos partenaires locaux
Sous compromis : VOTRE FUTUR LIEU DE VIE

Cette localisation offre un cadre de vie privilégié, alliant confort urbain et tranquillité résidentielle. Idéalement situé, cet emplacement vous place à proximité immédiate du parc Bourran, de Mérignac Centre, de Mérignac Soleil et des commerces de quartier. De plus, le tramway A au pied de l'immeuble facilite vos déplacements, faisant de cette adresse un choix parfait pour profiter pleinement des atouts de la ville.

Ce bel appartement est composé d'une entrée avec placards, idéale pour le rangement, de deux chambres confortables, d'une salle de bain fonctionnelle avec emplacement lave linge, et d'une grande pièce de vie lumineuse grâce à son exposition plein sud et ouest. Cet espace de vie s'ouvre sur une agréable terrasse, parfaite pour profiter des beaux jours.

Il bénéficie de prestations modernes et soignées. La résidence propose des matériaux de qualité, des finitions élégantes et des espaces optimisés pour un confort de vie au quotidien. Vous profiterez également d'une isolation thermique et phonique renforcée, conforme aux normes récentes, ainsi que d'espaces communs accueillants.

Un parking couvert et sécurisé complète ce bien en SUS obligatoire (20 000€).

- Frais de Notaire réduits
- Garanties
- RE 2020
- ...

Visuel non contractuel – suggestion d'aménagement

VOTRE FUTUR LIEU DE VIE

Honoraires à la charge du vendeur. Dans une copropriété de 52 lots. Aucune procédure n'est en cours. DPE en cours. Les informations sur les risques auxquels ce bien est exposé sont disponibles sur le site Géorisques : georisques.gouv.fr.

Votre conseiller RH Patrimoine : Maxime HERVE
Agent commercial (Entreprise individuelle)
RSAC 133095555 J
RCP 13309666 J
Voir plus

Référence: VA2803-RHPATRI
Bien en copropriété. Nombre de lots : 52.
Honoraires à la charge du vendeur.
Barème des honoraires

Prêt immobilier

Vous souhaitez connaître votre capacité d’emprunt et trouver le meilleur crédit immobilier ?
Réaliser une simulation gratuite

Appartement à MERIGNAC
Appartement à MERIGNAC
Appartement à MERIGNAC
Appartement à MERIGNAC
Appartement à MERIGNAC
Appartement à MERIGNAC
Ce site est protégé par reCAPTCHA la Politique de confidentialité et les Conditions d’utilisation de Google s’appliquent.
Obtenir un prêt immobilier au meilleur taux ?

En poursuivant votre navigation sans modifier vos paramètres, vous acceptez l'utilisation de cookies susceptibles de réaliser des statistiques de visite. Cliquez ici pour plus d'informations