Grimaud - exclusivité :

— Grimaud 83310 —
120 000 €
22 m²
2 pièces
parkingbalcon/terrasse

***OFFRE D'ACHAT ACCEPTÉE PAR LE VENDEUR***
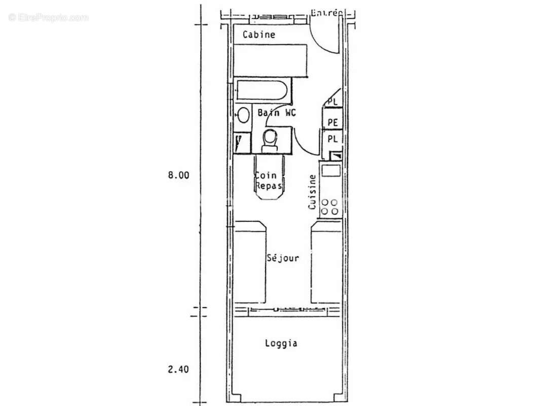
Dans une résidence sécurisée avec piscine et situé seulement à 300 mètres des plages, très bel appartement au 1er et dernier étage, de type studio/cabine et d'environ 22 m². Il est composé de :

Entrée/cabine avec lits superposés et placard, salle de bains avec toilettes, séjour avec belle hauteur sous-plafond et kitchenette entièrement équipée, ouvrant sur une terrasse couverte d'environ 7 m² avec vue sur verdure. Exposition Sud/Ouest.
Entièrement rénové en 2019. Parkings libres et disponibles. Charges de copropriété incluant l'eau froide !

Appartement SOUS BAIL PIERRE & VACANCES JUSQU'AU 30 SEPTEMBRE 2028 avec rapport locatif d'environ 5100 € HT / an (en fonction du C.A. de PIERRE & VACANCES) sans possibilité d'occupation.

« Les informations sur les risques auxquels ce bien est exposé sont disponibles sur le site Géorisques : www.georisques.gouv.fr ».
Voir plus

Référence: 85494444
DPE
A
B
C
D
E
F
G
GES
A
B
C
D
E
F
G

Prêt immobilier

Vous souhaitez connaître votre capacité d’emprunt et trouver le meilleur crédit immobilier ?
Réaliser une simulation gratuite

Appartement à GRIMAUD
Appartement à GRIMAUD
Appartement à GRIMAUD
Appartement à GRIMAUD
Appartement à GRIMAUD
Appartement à GRIMAUD
Appartement à GRIMAUD
Appartement à GRIMAUD
Appartement à GRIMAUD
Appartement à GRIMAUD
Appartement à GRIMAUD
Ce site est protégé par reCAPTCHA la Politique de confidentialité et les Conditions d’utilisation de Google s’appliquent.
Obtenir un prêt immobilier au meilleur taux ?

En poursuivant votre navigation sans modifier vos paramètres, vous acceptez l'utilisation de cookies susceptibles de réaliser des statistiques de visite. Cliquez ici pour plus d'informations