Pas de parking à Descartes pour le moment. Découvrez dès maintenant les parkings dans le département Indre-et-Loire.

Exclusivité logia baccarat

— Deneuvre 54120 —
51 000 €
170 m² / 335 m²
6 pièces
jardin

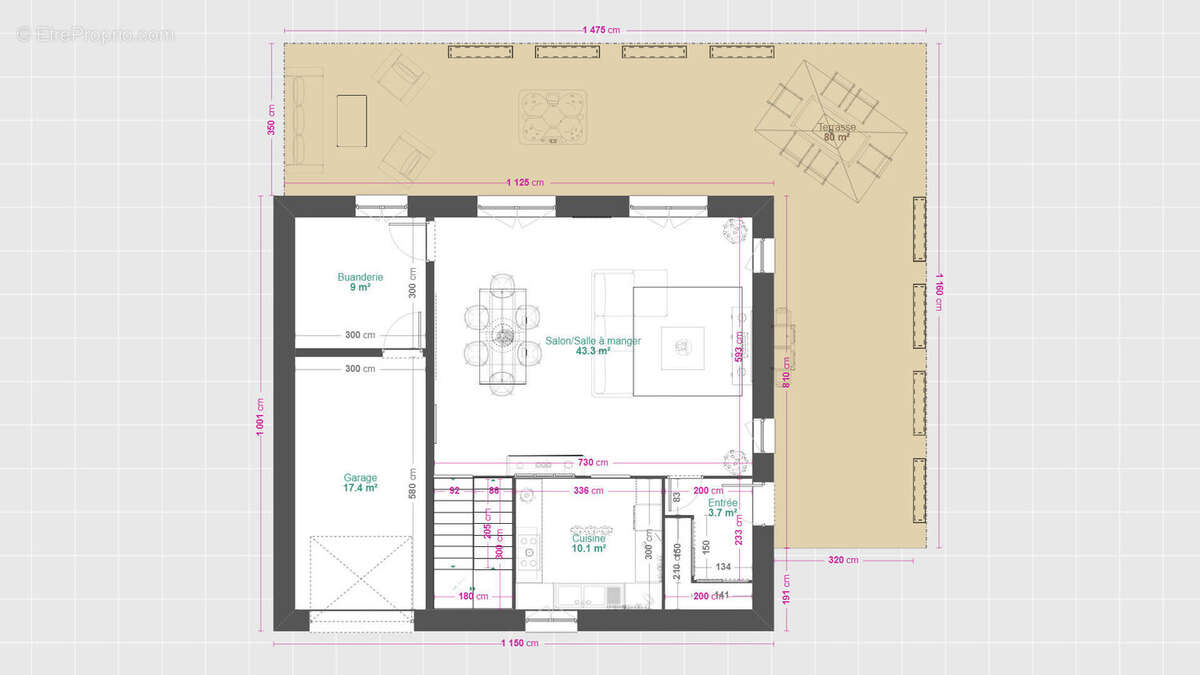
DENEUVRE Avec une vue incroyable sur les toits Bachamois , sur la chaine des Vosges et ses vallées venez laisser exprimer vos idées les plus folles pour cette maison à rénover de la tête aux pieds ! Ses volumes intéressant de 95m² par plateaux vous permettront de créer un cocon familiale pouvant accueillir aisément 5 à 6 personnes, avec des espaces de vie personnalisés et adapté à chacun. En rez de chaussée avec ses 95M², vous pouvez créer, un garage de 18M², une entrée de 4m², une cuisine de 12M², une pièce de 45M² donnant à une terrasse et votre jardin entièrement clos de mur et sans aucun vis à vis, et une buanderie de 9M². Au premier étage pourrait être créer 3 à 4 chambres avec dressing et salle de bain, un wc indépendant, une salle de jeu. Le grenier laisserait une solution supplémentaire à celles et ceux souhaitant encore de plus gros volume ! La cave et son accès direct sur le terrain, pourrait quant à elle accueillir une chaudière à pellets, un atelier et un espace de stockage. Plans 2D et 3D visibles en agence et sur demande, possibilité de prendre rendez vous avec des artisans pour chiffrer vos travaux et vos aides d'états (ANAH) A voir exclusivement avec Julien au ZÉRO SIX SOIXANTE SIX SOIXANTE TREIZE ZÉRO DEUX QUARANTE NEUF
Voir plus

Référence: 120955
Honoraires à la charge du vendeur.
Barème des honoraires
DPE
A
B
C
D
E
F
G
GES
A
B
C
D
E
F
G

Prêt immobilier

Vous souhaitez connaître votre capacité d’emprunt et trouver le meilleur crédit immobilier ?
Réaliser une simulation gratuite

Maison à DENEUVRE
Maison à DENEUVRE
Maison à DENEUVRE
Maison à DENEUVRE
Maison à DENEUVRE
Maison à DENEUVRE
Maison à DENEUVRE
Maison à DENEUVRE
Maison à DENEUVRE
Maison à DENEUVRE
Maison à DENEUVRE
Maison à DENEUVRE
Maison à DENEUVRE
Maison à DENEUVRE
Maison à DENEUVRE
Maison à DENEUVRE
Maison à DENEUVRE
Maison à DENEUVRE
Ce site est protégé par reCAPTCHA la Politique de confidentialité et les Conditions d’utilisation de Google s’appliquent.
Obtenir un prêt immobilier au meilleur taux ?

En poursuivant votre navigation sans modifier vos paramètres, vous acceptez l'utilisation de cookies susceptibles de réaliser des statistiques de visite. Cliquez ici pour plus d'informations