Bénéficiez des services de nos partenaires locaux soigneusement sélectionnés
pour vous accompagner dans votre parcours d'achat immobilier

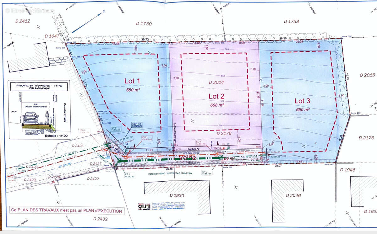
Parcelle constructible 550 m2 Viabilisée Vue Mont Blanc

— Saint-Jean-De-Gonville 01630 —
328 000 €
550 m²
jardin

Nos partenaires locaux
A VISITER RAPIDEMENT
L'agence ADN Immo vous propose 3 parcelles constructibles, viabilisées sur la commune de Saint Jean de Gonville:
Secteur UGP1 (18% d'emprise au sol). Libre constructeur. Viabilisées. Environnement exceptionnel. Au calme avec vue imprenable sur le Mont Blanc et Genève.
- 550 m2: 328'000 euros
- 608 m2: 348'000 euros
- 650 m2: 358'000 euros
Les honoraires sont à la charge du vendeur.
ADN IMMO Aurelien DEFENDI. Agent Immobilier. Carte professionnelle: [Coordonnées masquées]645. RCS Bourg en Bresse No 828 730 663 Tel: [Coordonnées masquées]. E-mail: [Coordonnées masquées]
Voir plus

Référence: 1434
Honoraires à la charge du vendeur.
Barème des honoraires
Terrain à SAINT-JEAN-DE-GONVILLE
Terrain à SAINT-JEAN-DE-GONVILLE
Terrain à SAINT-JEAN-DE-GONVILLE
Géorisques

Les informations sur les risques auxquels ce bien est exposé sont disponibles sur le site Géorisques : www.georisques.gouv.fr

Ce site est protégé par hCaptcha Politique de confidentialité et Conditions d’utilisation s’appliquent.