Maison 80m² à marcenay

— Marcenay 21330 —
23 600 €
80 m²
4 pièces

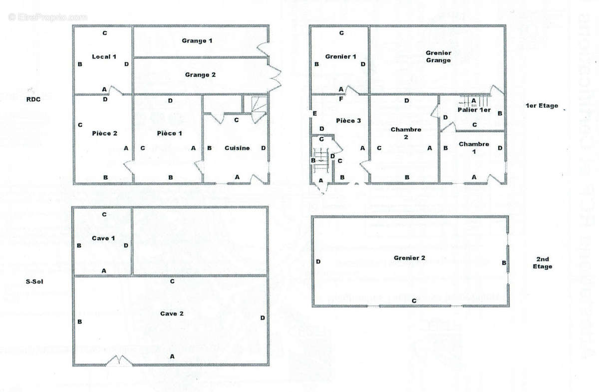
A Marcenay, proche de Châtillon sur Seine, 35 km de Montbard, une ancienne maison de village à acheter, sur une parcelle de 166 m² au sol ainsi qu'une parcelle non attenante de 2026 m² le long d'un ruisseau.
La maison est à rénover totalement. La toiture est en bon état.
Possibilité d'en faire une grande maison familiale ou plusieurs appartements (2 ou 3).
Sur la partie droite, une grange de 55 m² au sol avec possibilité de créer 2 étages.
Au centre, cuisine et salle sur environ 42 m² et à l'étage, 2 chambres de 14 m² et 20 m².
Sur la partie gauche, 51 m² au sol plus un étage et une mezzanine.
Grenier.
Vous êtes intéressés, contactez moi au [Coordonnées masquées], Sophie Boulanger Agent commercial Cabinet Flammant inscrite au RSAC de Dijon 421169160 EI.

Honoraires à la charge du vendeur. Non soumis au DPE. Les informations sur les risques auxquels ce bien est exposé sont disponibles sur le site Géorisques : georisques.gouv.fr. Ce bien vous est proposé par un agent commercial (Entreprise individuelle).

Votre conseiller CABINET FLAMMANT IMMOBILIER : Sophie BOULANGER
Agent commercial (Entreprise individuelle)
RSAC 42116916000049
Retrouvez l'annonce de l'agence immobilière CABINET FLAMMANT IMMOBILIER sur : https://www.cabinetflammant.com/ref/VM2391
Voir plus

Référence: VM2391-FLAMMANT
Honoraires à la charge du vendeur.
Barème des honoraires

Prêt immobilier

Vous souhaitez connaître votre capacité d’emprunt et trouver le meilleur crédit immobilier ?
Réaliser une simulation gratuite

Maison à MARCENAY
Maison à MARCENAY
Maison à MARCENAY
Maison à MARCENAY
Maison à MARCENAY
Ce site est protégé par reCAPTCHA la Politique de confidentialité et les Conditions d’utilisation de Google s’appliquent.
Obtenir un prêt immobilier au meilleur taux ?

En poursuivant votre navigation sans modifier vos paramètres, vous acceptez l'utilisation de cookies susceptibles de réaliser des statistiques de visite. Cliquez ici pour plus d'informations