Terrain constructible

— Morangis 91420 —
250 000 €
470 m²
jardin

Sur la commune de MORANGIS :
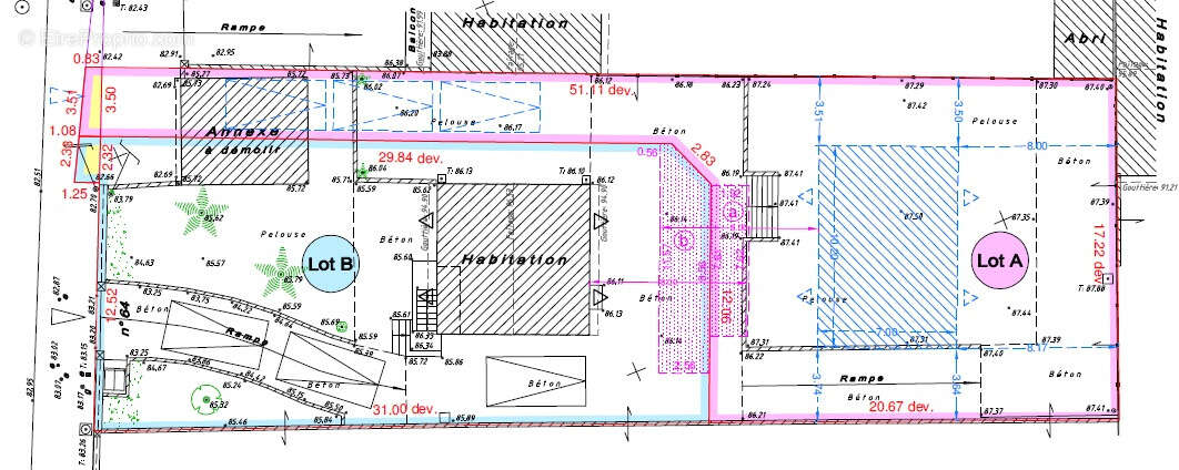
Beau terrain de 470 m2 en lot arrière avec une allée large de 3,50m et un plateau de 20,67m X 17,22m, autorisant une maison de plain-pied de 10m de façade.
La démolition du garage et la création d'une rampe est nécessaire.
Il est situé au coeur de la zone pavillonnaire, proche des écoles, des commerces et des transports.

Référence: 657
Barème des honoraires

Prêt immobilier

Vous souhaitez connaître votre capacité d’emprunt et trouver le meilleur crédit immobilier ?
Réaliser une simulation gratuite

Terrain à MORANGIS
Terrain à MORANGIS
Terrain à MORANGIS
Terrain à MORANGIS
Ce site est protégé par reCAPTCHA la Politique de confidentialité et les Conditions d’utilisation de Google s’appliquent.
Obtenir un prêt immobilier au meilleur taux ?

En poursuivant votre navigation sans modifier vos paramètres, vous acceptez l'utilisation de cookies susceptibles de réaliser des statistiques de visite. Cliquez ici pour plus d'informations