Bénéficiez des services de nos partenaires locaux soigneusement sélectionnés
pour vous accompagner dans votre parcours d'achat immobilier

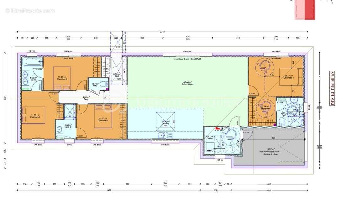
Maison neuve de 146m² + piscine chauffée et sa terrasse coulissante

— Angresse 40150 —
669 000 €
146 m² / 801 m²
5 pièces
parkingbalcon/terrassepiscine

Nos partenaires locaux
A proximité de Capbreton, Hossegor et Seignosse, sur la commune d'Angresse, à quelques minutes du bourg et de ses commerçants, soyez les premiers à venir habiter dans cette maison neuve de plain-pied de 146m² environ sur un terrain de 801m² environ.

Construction neuve, frais de notaires réduits !! Garantie décennale, dommage ouvrage, normes RT 2012.

Vous aurez plaisir à découvir la pièce de vie de 60m² environ ouverte sur une cuisine équipée design avec un îlot de cuisson et une table pour partager de bons repas en famille, tous les plans de travail sont en Dekton, matériau minéral très résistant. Belles prestations, matériaux de qualité. Concernant la partie nuit, la maison dispose d'une suite parentale aux normes PMR + 3 chambres, 1 une salle de bains et une 2ème salle d'eau. La décoration contemporaine et épurée vous permettra d'y ajouter votre touche personnelle pour vous y sentir chez vous.

Au quotidien, le plancher chauffant offre une température idéale combiné à la pompe à chaleur assurant ainsi un confort thermique optimal et très économique. La maison est également équipée d'un ballon thermodynamique pour la production d'eau chaude sanitaire.

La baie à galandage XXL apporte beaucoup de luminosité et facilite l'accès vers la terrasse coulissante en accoya qui accueillera votre salon de jardin et vous permettra de profiter de la piscine chauffée de 4,5 x 4,5 en la faisant glisser sur ses rails, vous profiterez également du boulodrome pour organiser de belles parties de pétanque entre amis. Jardin aménagé par un paysagiste pour mettre en valeurs les extérieurs et mettre votre intimité à l'abri des regards. Zone de stationnement pour 2 véhicules.

A votre écoute pour organiser une visite !!

Cette annonce référence 264831 vous est présentée par votre agent commercial BSK Immobilier SYLVIE BLUMHOFER (EI) immatriculé au RSAC de DAX (40100) sous le numéro 85[Coordonnées masquées]15.

Prix du bien : 669 000,00 €
Les honoraires d'agence sont à la charge du vendeur.

A propos des performances énergétiques :
Date de réalisation du diagnostic énergétique : 14/12/2023
Score DPE : 37 kWhEP/m²/an
Score GES : 1 kgepCO2/m²/an
Montant estimé des dépenses annuelles d'énergie pour un usage standard : entre 380.00 € et 570.00 € par an. Prix moyens des énergies indexés sur l'année 2021 (abonnements compris).

Les informations sur les risques auxquels ce bien est exposé sont disponibles sur le site Géorisques : www.georisques.gouv.fr
Voir plus

Référence: 264831
Honoraires à la charge du vendeur.
DPE
A
B
C
D
E
F
G
GES
A
B
C
D
E
F
G

Prêt immobilier

Vous souhaitez connaître votre capacité d’emprunt et trouver le meilleur crédit immobilier ?
Réaliser une simulation gratuite

Maison à ANGRESSE
Maison à ANGRESSE
Maison à ANGRESSE
Maison à ANGRESSE
Maison à ANGRESSE
Maison à ANGRESSE
Maison à ANGRESSE
Maison à ANGRESSE
Maison à ANGRESSE
Maison à ANGRESSE
Maison à ANGRESSE
Maison à ANGRESSE
Maison à ANGRESSE
Maison à ANGRESSE
Maison à ANGRESSE
Maison à ANGRESSE
Ce site est protégé par reCAPTCHA la Politique de confidentialité et les Conditions d’utilisation de Google s’appliquent.
Obtenir un prêt immobilier au meilleur taux ?

En poursuivant votre navigation sans modifier vos paramètres, vous acceptez l'utilisation de cookies susceptibles de réaliser des statistiques de visite. Cliquez ici pour plus d'informations