Maison en plein coeur de la mothe achard - 8 pièces - 195m²

— La Mothe-Achard 85150 —
199 000 €
195 m² / 371 m²
8 pièces
parkingjardin

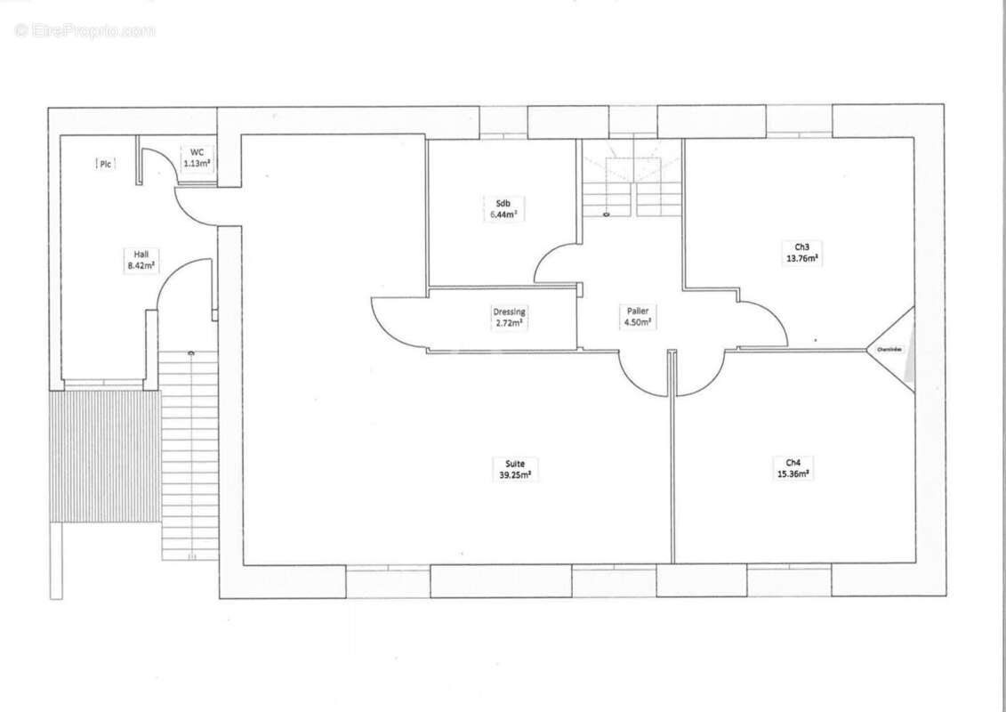
LA MOTHE ACHARD : Votre réseau l'Adresse vous présente cette maison de bourg à rénover, située au CALME et à proximité à pied des commerces et écoles. Idéale pour des primo-accédants, cette maison de caractère à rénover offrant deux niveaux d'environ 97m² chacun ainsi qu'un grenier aménageable de 50m². Ce bien est composé au rez-de-chaussée : d'une pièce de vie de plus de 42 m² prolongée sur un coin cuisine, deux chambres, une salle d'eau, une buanderie et un WC. A l'étage : 3 chambres, une salle de bain, un dressing et un WC. Venez découvrir sans attendre tous les avantages que vous apportera cette maison ! Chiffrage des travaux connus (devis réalisés) Prévoir les travaux suivants: menuiseries, toiture, chauffage et électricité. (Bien éligible Rénovation énergétique d'ampleur ou par gestes). Située aux portes du littoral Sablais, Les Achards vous accueillent avec ses multiples commerces, écoles et collèges, complexe sportif, complexe aquatique, médiathèque... etc. Accès rapide à la 2 x 2 voies direction la Roche sur Yon et les Sables d'Olonne Classe énergétique : E Réf : 1659 Honoraires charge vendeur Consommation énergique : 274 kWh/m²/an Emission de gaz à effet de serre : 37 kg CO2/m²/an Montant estimé des dépenses annuelles d'énergie pour un usage standard : entre 2 570 euros et 3 560 euros par an. Prix moyens des énergies indexés sur l'année 2021 (abonnements compris) Les informations sur les risques auxquels ce bien est exposé sont disponibles sur le site Géorisques : www.georisques.gouv.fr
Voir plus

Référence: 1659
Honoraires à la charge du vendeur.
DPE
A
B
C
D
E
F
G
GES
A
B
C
D
E
F
G

Prêt immobilier

Vous souhaitez connaître votre capacité d’emprunt et trouver le meilleur crédit immobilier ?
Réaliser une simulation gratuite

Maison à LA MOTHE-ACHARD
Maison à LA MOTHE-ACHARD
Maison à LA MOTHE-ACHARD
Maison à LA MOTHE-ACHARD
Maison à LA MOTHE-ACHARD
Ce site est protégé par reCAPTCHA la Politique de confidentialité et les Conditions d’utilisation de Google s’appliquent.
Obtenir un prêt immobilier au meilleur taux ?

En poursuivant votre navigation sans modifier vos paramètres, vous acceptez l'utilisation de cookies susceptibles de réaliser des statistiques de visite. Cliquez ici pour plus d'informations