Bénéficiez des services de nos partenaires locaux soigneusement sélectionnés
pour vous accompagner dans votre parcours d'achat immobilier

Maison 84 m2 / hyper centre asserac / plain pied / 2 ch

— Asserac 44410 —
290 600 €
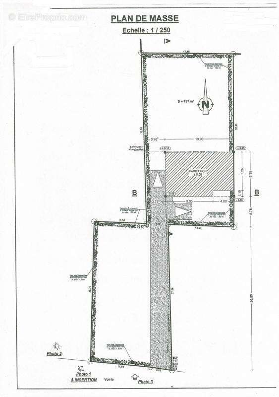
86 m² / 840 m²
4 pièces
parkingjardin

Nos partenaires locaux
EXCLUSIVITE NOOVIMO
A quelques pas du centre d'Assérac, maison de plain pied d'environ 84 m2, de 2017, lumineuse et bien agencée, comprenant une belle pièce de vie d'environ 42 m2 ( salon / séjour / cuisine ouverte, aménagée et équipée ), une arrière cuisine, deux grandes chambres d'environ 12 m2 ( avec placards ), une salle d'eau avec WC et un autre WC indépendant. Un garage indépendant en bois et une véranda sur dalle béton carrelée, type carport fermé, complètent le bien.
Chauffage par le sol, pompe à chaleur ( chauffage et eau chaude ), menuiseries en aluminium et PVC blanc, volets roulants électriques, couverture en ardoises naturelles, isolation RT 2012 ( classe A ), cloisons en briques et platre, douche italienne, sol stratifié dans les chambres et carrelage pour l'ensemble de la maison, raccordement au tout à l'égout.
Dans un environnement calme, sur un terrain d'environ 800 m2, à 300 mètres du centre d'Assérac, ses commerces et ses services : médecin, pharmacie, boulangerie, épicerie, coiffeur...A environ 6 km de la plage de Pont-Mahé, mais aussi à environ : 5 km de Saint-Molf, 7 km d'Herbignac, 8 km de Saint-Lyphard, 10 km de Mesquer et Pénestin et 17 km de Guérande.
Les informations sur les risques auxquels ce bien est exposé sont disponibles sur le site Géorisques : www.georisques.gouv.fr
Date de réalisation du Diagnostic de Performance Energétique ( DPE ) : 15/11/2024
Consommation énergie primaire : 54 kWh/m2/an. ( Classe : A )
Montant estimé des dépenses annuelles d'énergie pour un usage standard : entre 440 EUR et 650 EUR par an. Prix moyens des énergies indexés au 1 janvier 2022 (abonnements compris)
Pour plus de renseignements, contactez votre conseiller immobilier NOOVIMO : Jean-Louis MEUNIER, portable : [Coordonnées masquées], mail : [Coordonnées masquées], site : jlmeunier.noovimo.fr, Annonce rédigée par Jean-Louis MEUNIER, agent commercial immobilier, mandataire indépendant inscrit au RSAC de Saint-Nazaire sous le No 481 853 406. Honoraires charge vendeur. Nos honoraires sont consultables sur : www.noovimo.fr
Cette annonce vous est proposée par MEUNIER Jean Louis - - NoRSAC: , Enregistré à Greffe du tribunal de commerce de Saint Nazaire - Annonce rédigée et publiée par un Agent Mandataire -
Voir plus

Référence: 110_JMR-0022405
Honoraires à la charge du vendeur.
DPE
A
B
C
D
E
F
G
GES
A
B
C
D
E
F
G

Prêt immobilier

Vous souhaitez connaître votre capacité d’emprunt et trouver le meilleur crédit immobilier ?
Réaliser une simulation gratuite

Maison à ASSERAC
Maison à ASSERAC
Maison à ASSERAC
Maison à ASSERAC
Maison à ASSERAC
Maison à ASSERAC
Maison à ASSERAC
Maison à ASSERAC
Maison à ASSERAC
Maison à ASSERAC
Maison à ASSERAC
Ce site est protégé par reCAPTCHA la Politique de confidentialité et les Conditions d’utilisation de Google s’appliquent.
Obtenir un prêt immobilier au meilleur taux ?

En poursuivant votre navigation sans modifier vos paramètres, vous acceptez l'utilisation de cookies susceptibles de réaliser des statistiques de visite. Cliquez ici pour plus d'informations