Bénéficiez des services de nos partenaires locaux soigneusement sélectionnés
pour vous accompagner dans votre parcours d'achat immobilier

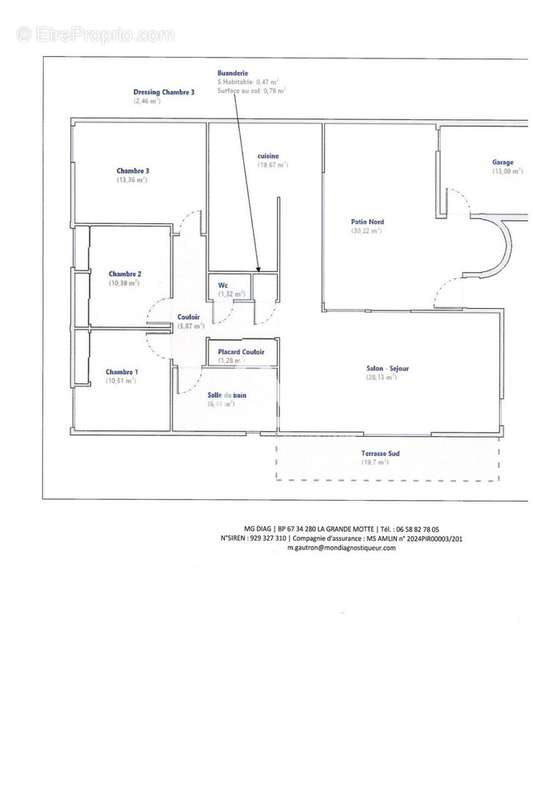
Maison 100m² à la grande-motte

— La Grande-Motte 34280 —
925 000 €
100 m² / 423 m²
5 pièces
parkingbalcon/terrassejardin

Nos partenaires locaux
Dans le quartier des villas - Belle villa de 100 m ² de plain-pied sur un terrain de 423 m ² - Comprenant : séjour, salon, cuisine équipée avec coin repas, dégagement avec placards, wc, salle de bain, deux chambres avec placard, chambre avec dressing - Entièrement refait à neuf - Exposé sud - Piscinable - Belles prestations avec portail automatique, interphone + visiophone, climatisation intégrée, double vitrage, volets électriques - Garage aménagé en pièce annexe - Photos sur demande - ''Les informations sur les risques auxquels ce bien est exposé sont disponibles sur le site www.georisques.gouv.fr''
Voir plus

Référence: 253V827M
Honoraires d'agence de 2.78% à la charge de l'acquéreur
DPE
A
B
C
D
E
F
G
GES
A
B
C
D
E
F
G

Prêt immobilier

Vous souhaitez connaître votre capacité d’emprunt et trouver le meilleur crédit immobilier ?
Réaliser une simulation gratuite

Maison à LA GRANDE-MOTTE
Maison à LA GRANDE-MOTTE
Ce site est protégé par reCAPTCHA la Politique de confidentialité et les Conditions d’utilisation de Google s’appliquent.
Obtenir un prêt immobilier au meilleur taux ?

En poursuivant votre navigation sans modifier vos paramètres, vous acceptez l'utilisation de cookies susceptibles de réaliser des statistiques de visite. Cliquez ici pour plus d'informations