Terrain a batir couffoulens

— Couffoulens 11250 —
65 000 €
529 m²
parkingjardin

L'agence Home For Life Immobilier vous propose ce terrain constructible de 529 m2 situé à Couffoulens, aux portes de Carcassonne.
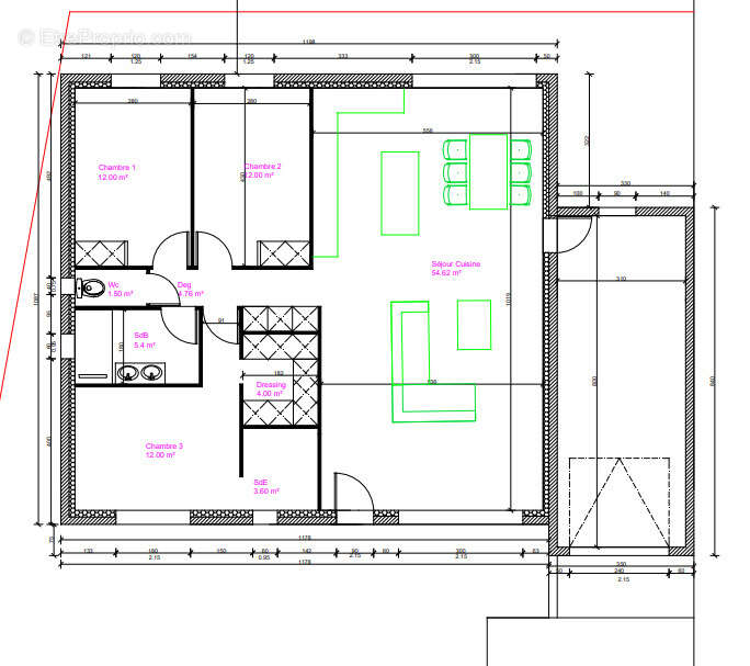
Les études de sol G1 et G2 ont été réalisées, et un permis de construire a été déposé et validé pour une villa de 107 m2 comprenent trois chambres, dont une suite parentales avec salle d'eau et dressing, une piéce à vivre de 54 m2, ainsi quun garage de 24.80 m2.
Ce terrain, piscinable, bénéficie d'un environnement calme dans un lotissement agéable.
Voir plus

Honoraires à la charge du vendeur.
Barème des honoraires

Prêt immobilier

Vous souhaitez connaître votre capacité d’emprunt et trouver le meilleur crédit immobilier ?
Réaliser une simulation gratuite

Terrain à COUFFOULENS
Terrain à COUFFOULENS
Terrain à COUFFOULENS
Terrain à COUFFOULENS
Ce site est protégé par reCAPTCHA la Politique de confidentialité et les Conditions d’utilisation de Google s’appliquent.
Obtenir un prêt immobilier au meilleur taux ?

En poursuivant votre navigation sans modifier vos paramètres, vous acceptez l'utilisation de cookies susceptibles de réaliser des statistiques de visite. Cliquez ici pour plus d'informations