Terrain à bâtir

— Brignoles 83170 —
109 000 €
305 m²

83170 - BRIGNOLES - QUARTIER HOPITAL - TERRAIN CONSTRUCTIBLE VIABILISE - 305 M² - EXCELLENTE OPPORTUNITE A SAISIR

effiCity, l'agence qui estime votre bien en ligne, vous propose :

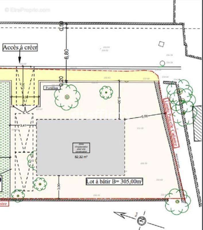
Situé dans un charmant quartier de Brignoles, ce terrain constructible et viabilisé (eau-électricité et tout a l égout) de 305 m² offre une excellente opportunité pour concrétiser votre projet de construction. Entièrement viabilisé, et en zone UC, il est prêt à accueillir votre future habitation.

Le terrain, doté d'une surface de 305 m², permet la construction d'une maison de 82,32 m² d' emprise au sol en R+1, offrant ainsi un espace de vie confortable et spacieux pour vous et votre famille.

Cette parcelle, entièrement clôturée et située dans un quartier paisible et recherché, vous garantit un environnement agréable et propice à la sérénité. À moins d'un kilomètre à pied du centre-ville, de l'hôpital Jean Marcel et du collège Cézanne, vous bénéficierez d'un accès facile aux commerces, écoles et services essentiels.
La fibre est également disponible dans la rue.

Ne manquez pas cette occasion unique de devenir propriétaire d'un terrain constructible prêt à accueillir vos projets.
N'hésitez pas à nous contacter pour plus d'informations et pour organiser une visite avec notre agent immobilier expérimenté, Anne-Cécile Chevalier, au [Coordonnées masquées] / [Coordonnées masquées].
Les informations sur les risques auxquels ce bien est exposé sont disponibles sur le site Georisque : georisques. gouv. fr
Anne-Cécile Chevalier - EI - est Agent Commercial mandataire en immobilier, immatriculé au Registre Spécial des Agents Commerciaux du Tribunal de Commerce de Draguignan sous le n°829388594.
Siège social du mandant : effiCity, 48 avenue de Villiers - 75017 PARIS - Société par Actions Simplifiée, société au capital de 132 373,05 euros, immatriculée au RCS Paris 497 617 746 et titulaire de la Carte professionnelle CPI 75[Coordonnées masquées]02 025 - CCI Paris IDF - Caisse de Garantie : GALIAN Assurances 89 rue de la Boétie 75008 Paris
Voir plus

Référence: 173023
Honoraires à la charge du vendeur.
Barème des honoraires

Prêt immobilier

Vous souhaitez connaître votre capacité d’emprunt et trouver le meilleur crédit immobilier ?
Réaliser une simulation gratuite

Terrain à BRIGNOLES
Terrain à BRIGNOLES
Terrain à BRIGNOLES
Terrain à BRIGNOLES
Terrain à BRIGNOLES
Terrain à BRIGNOLES
Terrain à BRIGNOLES
Terrain à BRIGNOLES
Terrain à BRIGNOLES
Ce site est protégé par reCAPTCHA la Politique de confidentialité et les Conditions d’utilisation de Google s’appliquent.
Obtenir un prêt immobilier au meilleur taux ?

En poursuivant votre navigation sans modifier vos paramètres, vous acceptez l'utilisation de cookies susceptibles de réaliser des statistiques de visite. Cliquez ici pour plus d'informations