Maison t5 i hyper centre i dinan

— Dinan 22100 —
550 000 €
138 m² / 25 m²
6 pièces
jardin

Liberkeys vous présente en exclusivité une Maison T5 de 138,5 m² qui coche toutes les cases : performance ultime, prestations haut de gamme et un emplacement CENTRE-VILLE à Dinan, tout simplement imbattable.

Les Avantages Immédiats
Oubliez les travaux et les mauvaises surprises !

ZÉRO SOUCI : Construction aux Normes RE2020 (énergies maximales).

ZÉRO FRAIS CACHÉ : Profitez de Frais de Notaire RÉDUITS pour optimiser votre budget.

EMPLACEMENT STRATÉGIQUE : Le luxe d'une maison en plein cœur de Dinan !

Un Aménagement Parfaitement Optimisé
Cette maison offre un confort et une fonctionnalité pensés pour la vie de famille moderne :

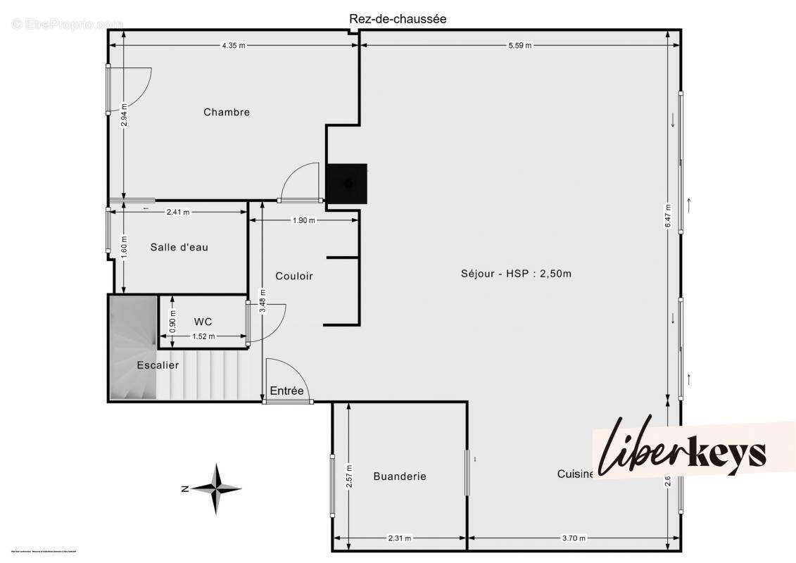
Rez-de-Chaussée "Vie de Plain-Pied" : Un hall d'accueil, un vaste Salon-Séjour avec Cuisine Ouverte idéal pour recevoir, une arrière-cuisine pratique, un WC, et surtout, une SUITE PARENTALE PRIVATIVE avec sa propre salle de bains.

L'Étage Spacieux : Un espace nuit complet avec trois chambres supplémentaires, une seconde salle de bains, un WC séparé et un précieux Espace Bureau pour le télétravail ou les études.

Les Prestations qui Font la Différence
Extérieurs Privatifs : Profitez d'une belle Terrasse en bois de 20 m² pour vos repas d'été.

Sécurité et Confort : Accès par un Portail Électrique.

TOTAL : 4 Chambres, 2 Salles de Bains, WC séparés.

Une Opportunité à Saisir MAINTENANT !
Vous cherchez une maison, économique et idéalement située ? Ne cherchez plus, elle est là.

Contactez directement votre conseiller pour être le premier à visiter ce bien exceptionnel !

Contact : Hugues Le Gall, Agent Commercial (RSAC Saint-Malo 502 019 771).
Référence annonce : DOM10175.
(Honoraires à la charge du vendeur.)

Prêt à vous installer au centre de Dinan, sans compromis ?
Voir plus

Référence: DOM10175
Honoraires d'agence de 3% à la charge de l'acquéreur
DPE
A
B
C
D
E
F
G
GES
A
B
C
D
E
F
G

Prêt immobilier

Vous souhaitez connaître votre capacité d’emprunt et trouver le meilleur crédit immobilier ?
Réaliser une simulation gratuite

Maison à DINAN
Maison à DINAN
Maison à DINAN
Maison à DINAN
Maison à DINAN
Maison à DINAN
Maison à DINAN
Maison à DINAN
Maison à DINAN
Maison à DINAN
Maison à DINAN
Maison à DINAN
Maison à DINAN
Maison à DINAN
Ce site est protégé par reCAPTCHA la Politique de confidentialité et les Conditions d’utilisation de Google s’appliquent.
Obtenir un prêt immobilier au meilleur taux ?

En poursuivant votre navigation sans modifier vos paramètres, vous acceptez l'utilisation de cookies susceptibles de réaliser des statistiques de visite. Cliquez ici pour plus d'informations