Bénéficiez des services de nos partenaires locaux soigneusement sélectionnés
pour vous accompagner dans votre parcours d'achat immobilier

Durlinsdorf corps de ferme

— Durlinsdorf 68480 —
249 000 €
142 m² / 1 531 m²
7 pièces
parkingjardin

Nos partenaires locaux
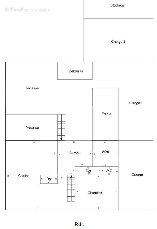
Durlinsdorf, corps de ferme à rénover sur 15 ares. Possibilité de terrain supplémentaire 30 ares et total 45 ares.
142m2 habitables plus grange aménageable.
RDC avec entrée, cuisine, véranda, salle de bain une pièce.
Etage avec 3 pièces, accès grange (dalle béton). Combles avec une pièce et une salle d'eau possible.
Cave, grange, garage, terrasse et jardin.
Vidéo disponible sur demande.
Contact [Coordonnées masquées]
Bien de l'agence de Ferrette. Etat des risques naturels : zone sismique moyenne 4
Voir plus

Référence: 10521
Honoraires d'agence de 4.17% à la charge de l'acquéreur
Barème des honoraires
DPE
A
B
C
D
E
F
G
GES
A
B
C
D
E
F
G

Prêt immobilier

Vous souhaitez connaître votre capacité d’emprunt et trouver le meilleur crédit immobilier ?
Réaliser une simulation gratuite

Maison à DURLINSDORF
Maison à DURLINSDORF
Maison à DURLINSDORF
Maison à DURLINSDORF
Maison à DURLINSDORF
Maison à DURLINSDORF
Maison à DURLINSDORF
Maison à DURLINSDORF
Maison à DURLINSDORF
Maison à DURLINSDORF
Maison à DURLINSDORF
Maison à DURLINSDORF
Maison à DURLINSDORF
Maison à DURLINSDORF
Maison à DURLINSDORF
Ce site est protégé par reCAPTCHA la Politique de confidentialité et les Conditions d’utilisation de Google s’appliquent.
Obtenir un prêt immobilier au meilleur taux ?

En poursuivant votre navigation sans modifier vos paramètres, vous acceptez l'utilisation de cookies susceptibles de réaliser des statistiques de visite. Cliquez ici pour plus d'informations