Maison individuelle 6 pièces de 161m²

— Seyssins 38180 —
599 000 €
161 m² / 736 m²
6 pièces
balcon/terrassejardin

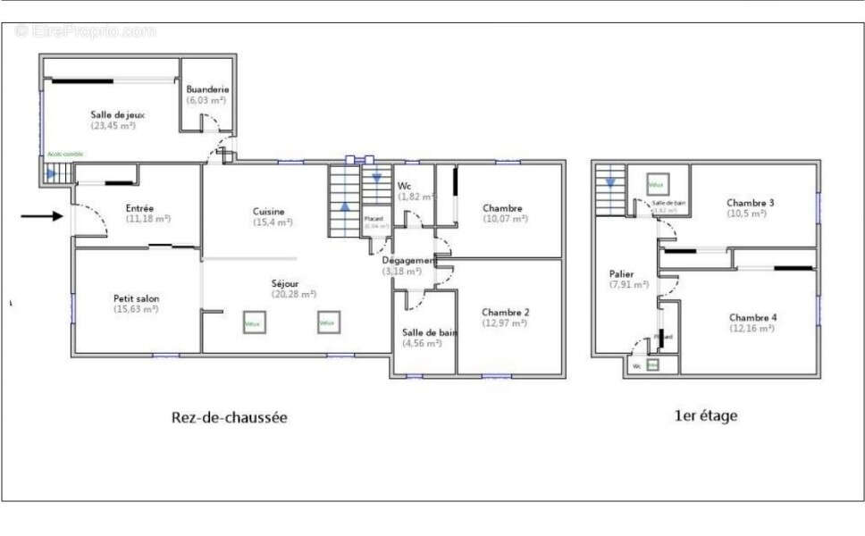
SEYSSINS - L'agence MARCHETTI GRENOBLE , vous propose cette confortable villa individuelle, dans une rue calme proche des commerces, école. Sur une parcelle de 736m², cette villa de 161m² habitables a été bâtie en 2004 sur 2 niveaux, hors lotissement, hors copropriété. Elle distribue : un très grand séjour-cuisine-salle à manger ( 60m²) avec accès au jardin plat arboré, intime et piscinable. Par son exposition plein Sud, ses baies vitrées et vélux vous apporterons une grande luminosité. Les 4 chambres se répartissent comme suit : 2 en rez-de-chaussée, SDB et WC, à l'étage 2 autres avec SDB et WC ainsi que de nombreux rangements. (plan). Egalement en rez-de-chaussée une pièce complémentaire pouvant servir de salle de jeux, pour du télétravail, chambre d'amis ou autre. Une buanderie-chaufferie pour la chaudière individuelle gaz SAUNIER-DUVAL alimentant un chauffage au sol par résilles avec en complément des panneaux solaires pour un fonctionnement en mode cogénération, ses performances énergétiques en font une maison peu énergivore. Pour les périodes d inter-saisons et un confort optimal, une climatisation réversible. Montant estimé des dépenses annuelles d'énergie pour un usage standard : entre 1370 euros et 1930 euros par an. Prix moyens des énergies indexés sur l'année 2021 (abonnements compris). Date des diagnostics : 04/10/2023 Les informations sur les risques auxquels ce bien est exposé sont disponibles sur le site Géorisques : www.georisques.gouv.fr Les honoraires sont à la charge du vendeur. Envie d'en savoir plus sur ce bien ? prenez contact au : [Coordonnées masquées] RSAC GRENOBLE N° 818398232 Agence Marchetti Grenoble CPI 38[Coordonnées masquées]22066.
Voir plus

Référence: 623
Honoraires à la charge du vendeur.
DPE
A
B
C
D
E
F
G
GES
A
B
C
D
E
F
G

Prêt immobilier

Vous souhaitez connaître votre capacité d’emprunt et trouver le meilleur crédit immobilier ?
Réaliser une simulation gratuite

Maison à SEYSSINS
Maison à SEYSSINS
Maison à SEYSSINS
Maison à SEYSSINS
Maison à SEYSSINS
Maison à SEYSSINS
Maison à SEYSSINS
Maison à SEYSSINS
Maison à SEYSSINS
Maison à SEYSSINS
Maison à SEYSSINS
Maison à SEYSSINS
Maison à SEYSSINS
Maison à SEYSSINS
Maison à SEYSSINS
Maison à SEYSSINS
Maison à SEYSSINS
Ce site est protégé par reCAPTCHA la Politique de confidentialité et les Conditions d’utilisation de Google s’appliquent.
Obtenir un prêt immobilier au meilleur taux ?

En poursuivant votre navigation sans modifier vos paramètres, vous acceptez l'utilisation de cookies susceptibles de réaliser des statistiques de visite. Cliquez ici pour plus d'informations