Bénéficiez des services de nos partenaires locaux soigneusement sélectionnés
pour vous accompagner dans votre parcours d'achat immobilier

Voir tous les partenaires locaux

Maison avec jardin de ville et garage -T2 et studio indépendants- SAINT SEURIN

— Bordeaux 33000 —
1 097 000 €
274 m²
7 pièces

Nos partenaires locaux
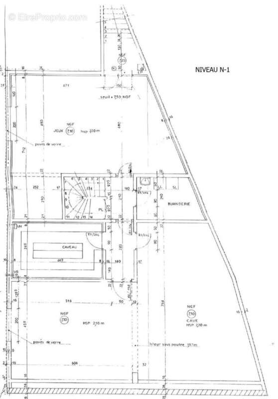
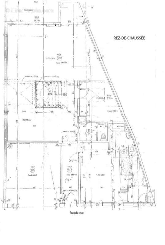
BORDEAUX - SAINT SEURIN. L'agence GRANGE DELMAS vous propose à la vente un bel ensemble immobilier d'une surface totale de 274m², avec jardin et garage double, à proximité immédiate de la Basilique Saint-Seurin et de toutes les commodités du quartier. Cet ensemble se compose d'un studio loué meublé de 22m² au rez-de-chaussée, un T2 loué meublé de 34m² à l'étage, et de la maison principale de 218m² avec 2 entrées séparées. Cette maison se compose d'une entrée ouvrant sur un vaste séjour de plus de 60m² avec cheminée donnant de plain pied sur un jardin de ville. La cuisine est indépendante. Un escalier mène au niveau inférieur qui accueille une pièce de plus de 40m². un 2ème espace de de plus de 60m², une buanderie et une cave à vin. Le 1er étage est réservé à l'espace nuit avec 3 chambres ayant chacune 1 salle de bain ou salle d'eau attenante, un dressing et un bureau. Un garage double complète cette maison aux beaux volumes offrant de nombreuses possibilités d'aménagement pour une famille et/ou l'exercice d'une profession libérale. Emplacement idéal proche de Saint Seurin, des commerces, et des transports. Prix : 1.097.000 euros FAI (4.98 % honoraires TTC à la charge de l'acquéreur.)
Voir plus

Référence: 15011
Honoraires d'agence de 4.98% à la charge de l'acquéreur
DPE
A
B
C
D
E
F
G
GES
A
B
C
D
E
F
G
Maison à BORDEAUX
Maison à BORDEAUX
Maison à BORDEAUX
Maison à BORDEAUX
Maison à BORDEAUX
Maison à BORDEAUX
Maison à BORDEAUX
Maison à BORDEAUX
Maison à BORDEAUX
Géorisques

Les informations sur les risques auxquels ce bien est exposé sont disponibles sur le site Géorisques : www.georisques.gouv.fr

Ce site est protégé par hCaptcha Politique de confidentialité et Conditions d’utilisation s’appliquent.