Bénéficiez des services de nos partenaires locaux soigneusement sélectionnés
pour vous accompagner dans votre parcours d'achat immobilier

Appartement 29m² à fontenay-sous-bois

— Fontenay-Sous-Bois 94120 —
166 000 €
29 m²
2 pièces

Nos partenaires locaux
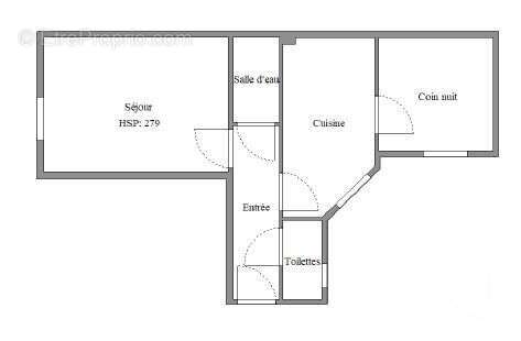
Votre agence Century21 Dalayrac vous propose un appartement de deux pièces a deux pas des commerces des rigollots. Ce bien se compose d'une entrée d'un séjour, une salle d'eau, wc, cuisine et un coin nuit. Une cave et droit à un local vélo complètent ce bien.

Cette immeuble des années 1900 a été ravalé et l'appartement est en bon état.
Rdc sur rue calme et a 10 mn du RER et du bois de Vincennes.

VMC Hygro B +
mur intérieur prévoir isolation ITI R pour être en D Logement à consommation énergétique excessive : classe G. Montant estimé des dépenses annuelles d'énergie pour un usage standard entre 1030.0 € et 1420.0 €, indexées à l'année 2021 (abonnements compris). Bien proposé par Olivier JAMES EI, agent commercial (RSAC 398391961)
Voir plus

Référence: 7884
Bien en copropriété. Nombre de lots : 15. Charges de copropriété : 100 €.
DPE
A
B
C
D
E
F
G
GES
A
B
C
D
E
F
G

Prêt immobilier

Vous souhaitez connaître votre capacité d’emprunt et trouver le meilleur crédit immobilier ?
Réaliser une simulation gratuite

Appartement à FONTENAY-SOUS-BOIS
Appartement à FONTENAY-SOUS-BOIS
Appartement à FONTENAY-SOUS-BOIS
Appartement à FONTENAY-SOUS-BOIS
Appartement à FONTENAY-SOUS-BOIS
Appartement à FONTENAY-SOUS-BOIS
Appartement à FONTENAY-SOUS-BOIS
Appartement à FONTENAY-SOUS-BOIS
Appartement à FONTENAY-SOUS-BOIS
Ce site est protégé par reCAPTCHA la Politique de confidentialité et les Conditions d’utilisation de Google s’appliquent.
Obtenir un prêt immobilier au meilleur taux ?

En poursuivant votre navigation sans modifier vos paramètres, vous acceptez l'utilisation de cookies susceptibles de réaliser des statistiques de visite. Cliquez ici pour plus d'informations