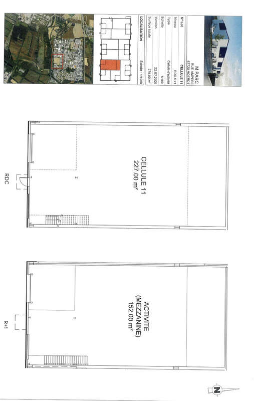
Superbe local / bureau de 358m2.

— Hoerdt 67720 —
638 600 €
358 m²



En frais de Notaire réduit , tva récupérable , A Saisir , à Hoerdt dans le parc d’activité du Ried , superbes locaux hauts de gammes érigés en 2021 de 358m2 , soit 133m2 de bureaux et 225m2 de hall de stockage / atelier + 5 places de parkings privatives.

Au rdc de plain pieds :
- 225m2 de surface de stockage / atelier avec un accès par une porte motorisée sectionnelle de 3m X 3,5m ht.
- un accès piéton par porte d’entrée.

A l’étage :
- entièrement pensé et réalisé par un architecte d’intérieur , grand espace de 133m2 de bureaux , coin cuisine , sanitaires avec 2 wc et meuble double vasque , de nombreux placards sont répartis dans les locaux.

Le bien est complété par 5 places de parkings extérieures .


Équipement du hall:
- Chauffage par pompe à chaleur air/air.
- VMC double flux.
- système d’alarme.


Prix du bien : 638 600 € HT honoraires d’agence inclus à la charges de l’acquéreur . ( TVA à payer en sus et récupérable , frais de Notaire réduits ) .

Le parc d’activité du Ried se situe A 10 minutes au nord de Strasbourg, et se distingue par sa proximité aux :
- grands axes routiers .
- ses 386 entreprises , et son développement en cours .
- eco-parc de Reichstett..

Pour tous renseignements complémentaires ou une visite votre contact:



PATRICE OTTO
Négociateur B.A Immobilier
76, rue de la république
67720 Hoerdt
[Coordonnées masquées]
TEL: [Coordonnées masquées]




Voir plus

Référence: POvcl
Honoraires d'agence de 3.55% à la charge de l'acquéreur
DPE
A
B
C
D
E
F
G
GES
A
B
C
D
E
F
G

Prêt immobilier

Vous souhaitez connaître votre capacité d’emprunt et trouver le meilleur crédit immobilier ?
Réaliser une simulation gratuite

Commerce à HOERDT
Commerce à HOERDT
Commerce à HOERDT
Commerce à HOERDT
Commerce à HOERDT
Commerce à HOERDT
Commerce à HOERDT
Commerce à HOERDT
Commerce à HOERDT
Commerce à HOERDT
Commerce à HOERDT
Commerce à HOERDT
Ce site est protégé par reCAPTCHA la Politique de confidentialité et les Conditions d’utilisation de Google s’appliquent.
Obtenir un prêt immobilier au meilleur taux ?

En poursuivant votre navigation sans modifier vos paramètres, vous acceptez l'utilisation de cookies susceptibles de réaliser des statistiques de visite. Cliquez ici pour plus d'informations