Bénéficiez des services de nos partenaires locaux soigneusement sélectionnés
pour vous accompagner dans votre parcours d'achat immobilier

Sous compromis à vendre - t2 rénové avec terrasse vue mer et parking à grasse

— Grasse 06130 —
165 000 €
31 m²
2 pièces
parkingbalcon/terrasse

Nos partenaires locaux
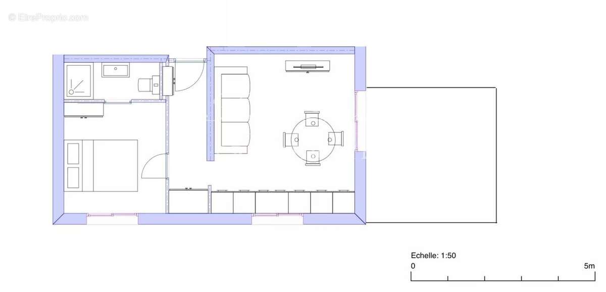
Ce charmant appartement T2 de 31,7 m², entièrement rénové, offre des prestations modernes et un cadre de vie agréable. Situé dans une copropriété de 5 lots, il bénéficie d’une terrasse de 13,7 m² exposée plein sud, avec une vue panoramique exceptionnelle sur la mer. Une place de parking est incluse dans le prix.

L’intérieur se compose d’une entrée, d'un séjour lumineux avec une cuisine moderne et fonctionnelle, d’une chambre et d’une salle d’eau

La rénovation de qualité met en avant des prestations telles que le parquet en chêne, les menuiseries en aluminium, la climatisation réversible, les fenêtres coulissantes en double vitrage et des stores électriques.

Les charges de copropriété, estimées à environ 350 € par an pour ce lot, restent faibles. Elles incluent l’entretien des parties communes, le jardinage, ainsi que l’électricité et l’eau des espaces partagés.

Ce bien est idéalement situé, proche des commodités comme les commerces, les écoles et les transports en commun. Il offre également un accès rapide aux principaux axes routiers, le rendant très pratique au quotidien.

Cet appartement, incluant une place de parking, est parfait pour un premier achat, un investissement locatif ou un pied-à-terre.

Pour plus d’informations ou pour organiser une visite, contactez-nous rapidement.
Voir plus

Référence: 85579588

Prêt immobilier

Vous souhaitez connaître votre capacité d’emprunt et trouver le meilleur crédit immobilier ?
Réaliser une simulation gratuite

Appartement à GRASSE
Appartement à GRASSE
Appartement à GRASSE
Appartement à GRASSE
Appartement à GRASSE
Appartement à GRASSE
Ce site est protégé par reCAPTCHA la Politique de confidentialité et les Conditions d’utilisation de Google s’appliquent.
Obtenir un prêt immobilier au meilleur taux ?

En poursuivant votre navigation sans modifier vos paramètres, vous acceptez l'utilisation de cookies susceptibles de réaliser des statistiques de visite. Cliquez ici pour plus d'informations