Maison 397m² à peillon

— Peillon 06440 —
480 000 €
397 m² / 2 970 m²
9 pièces

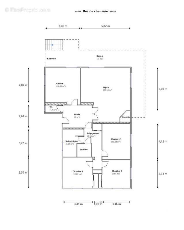
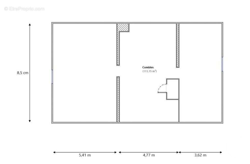
Peillon, villa de 397 m² habitables offrant calme et vue dégagée, entourée de pleine nature.La villa se compose d'une cuisine indépendante, d'un séjour et de trois chambres. Elle dispose également d'un espace extérieur très agréable, de grandes terrasses, d'un grand garage, et offre la possibilité d'ajouter une piscine. Vue sur le village de Peillon.Des travaux de rénovation importants sont nécessaires, mais elle pourrait convenir à une famille. Le potentiel d'exploitation de la surface est considérable. Peillon, villa of 397 m² offering peace and a clear view, surrounded by nature.The villa consists of an independent kitchen, a living room, and three bedrooms. It also features a very pleasant outdoor space, large terraces, a spacious garage, and the possibility of adding a pool. It offers a view of the village of Peillon.The property requires significant renovation work but could be ideal for a family. The potential for optimizing the available space is considerable.
Voir plus

Référence: 5515
Honoraires à la charge du vendeur.
Barème des honoraires
DPE
A
B
C
D
E
F
G
GES
A
B
C
D
E
F
G

Prêt immobilier

Vous souhaitez connaître votre capacité d’emprunt et trouver le meilleur crédit immobilier ?
Réaliser une simulation gratuite

Maison à PEILLON
Maison à PEILLON
Maison à PEILLON
Maison à PEILLON
Maison à PEILLON
Maison à PEILLON
Maison à PEILLON
Maison à PEILLON
Maison à PEILLON
Maison à PEILLON
Maison à PEILLON
Maison à PEILLON
Maison à PEILLON
Maison à PEILLON
Maison à PEILLON
Maison à PEILLON
Maison à PEILLON
Maison à PEILLON
Maison à PEILLON
Maison à PEILLON
Maison à PEILLON
Maison à PEILLON
Maison à PEILLON
Ce site est protégé par reCAPTCHA la Politique de confidentialité et les Conditions d’utilisation de Google s’appliquent.
Obtenir un prêt immobilier au meilleur taux ?

En poursuivant votre navigation sans modifier vos paramètres, vous acceptez l'utilisation de cookies susceptibles de réaliser des statistiques de visite. Cliquez ici pour plus d'informations