Bel immeuble de rapport centre le lude 72

— Le Lude 72800 —
135 200 €
270 m²
parking

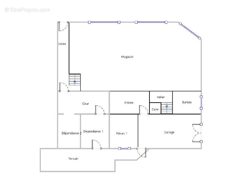
Bel Immeuble de rapport à usage d'habitation et commerce de plus de 270M2 situé au centre de Le Lude 72, composé de: -au rez-de-chaussée un local/magasin/Bureau de 125M2 loué. -au 1er étage 2 appartements indépendants dont un T1/T2 de 50M2 loué et un vaste T3/T4 avec garage et jardin libre, habitable, ce qui représente pour L'ensemble des 2 une surface de 150M2. Très grand parking, commerces et services à proximité. Rentrée locative possible entre 1200 et 1500EUR.
Un très bel investissement soit pour y habiter et avoir des rentrées locatives ou pour louer l'ensemble, un développement est possible avec les grands combles. Bonne toiture
Prix 130 000EUR + 5200EURTTC (4%) d'honoraires à charge de l'acquéreur soit un montant total de 135200EUR (Mandat 6757)
Pour votre financement demandez à être mis en relation avec notre partenaire local CAFPI.
CLASSE ENERGIE: D 214 kwh/m2/an. CLASSE CLIMAT: D 42 kg CO2/m2/an. Estimation des coûts annuels d'énergie du logement entre 2170EUR et 2990EUR par an Date de référence des prix de l'énergie utilisés pour établir cette estimation : 2021 Abonnements compris.. Diagnostic établi le 16/04/2024
concernant les risques naturels et technologiques: 'Les informations sur les risques auxquels ce bien est exposé sont disponibles sur le site Géorisques : http://www.georisques.gouv.fr '
Nous recherchons activement des maisons, propriétés, Fermettes, maisons anciennes, maisons de Loisirs sur les départements 72, 49 et plus si biens d'exceptions.
Didier HERVE Tel: [Coordonnées masquées] email [Coordonnées masquées]
Agent commercial RSAC LE MANS 324 608 488.
La présente annonce immobilière a été rédigée sous la responsabilité éditoriale de (EI)Didier HERVE., Agent commercial indépendant en immobilier de la SARL Côté France (sans détention de fonds), l'agent commercial immatriculé au RSAC de Le Mans. sous le numéro 324 608 488, titulaire de la carte de démarchage immobilier pour le compte de la société SARL Côté France.
Annonce proposée par un agent commercial Les informations sur les risques auxquels ce bien est exposé sont disponibles sur le site Géorisques
Cette annonce vous est proposée par HERVE Didier - EI - NoRSAC: 324 608 488, Enregistré à Greffe du tribunal de commerce de Le Mans Côté France Immobilier - Réseau Immobilier Franco Belge International - Des conseillers du Nord au Sud de la France et 4 agences à votre service www.cotefranceimmo.fr - Annonce rédigée et publiée par un Agent Mandataire -
Voir plus

Référence: 74_HDI6757
Honoraires d'agence de 4% à la charge de l'acquéreur
DPE
A
B
C
D
E
F
G
GES
A
B
C
D
E
F
G

Prêt immobilier

Vous souhaitez connaître votre capacité d’emprunt et trouver le meilleur crédit immobilier ?
Réaliser une simulation gratuite

Appartement à LE LUDE
Appartement à LE LUDE
Appartement à LE LUDE
Appartement à LE LUDE
Appartement à LE LUDE
Appartement à LE LUDE
Appartement à LE LUDE
Ce site est protégé par reCAPTCHA la Politique de confidentialité et les Conditions d’utilisation de Google s’appliquent.
Obtenir un prêt immobilier au meilleur taux ?

En poursuivant votre navigation sans modifier vos paramètres, vous acceptez l'utilisation de cookies susceptibles de réaliser des statistiques de visite. Cliquez ici pour plus d'informations