Bénéficiez des services de nos partenaires locaux soigneusement sélectionnés
pour vous accompagner dans votre parcours d'achat immobilier

Spacieux et lumineux 4 pièces secteur basse californie

— Cannes 06400 —
799 000 €
110 m²
4 pièces
parkingbalcon/terrasseascenseur

Nos partenaires locaux
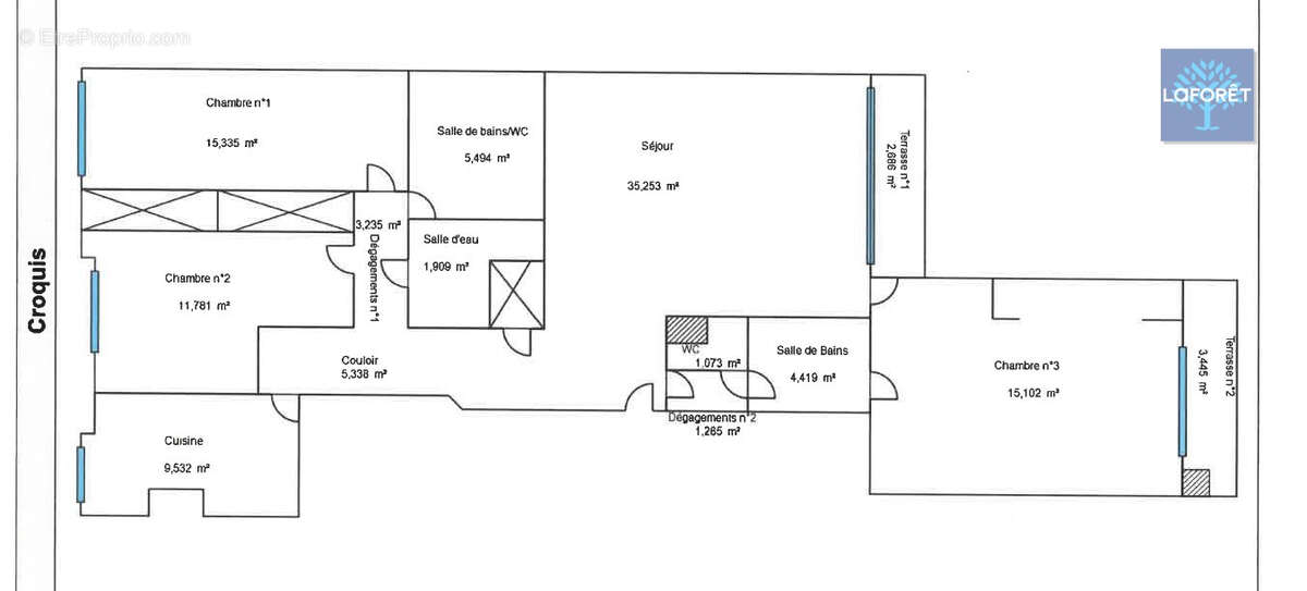
L'agence Laforêt Cannes Croisette vous propose en exclusivité ce très bel appartement 4 pièces traversant de 110 m² avec de belles prestations en étage élevé au calme et lumineux dans le secteur très prisé de la Basse Californie à 5 mn à pieds de la croisette et de toutes commodités. Il comprend une entrée, un grand séjour exposé sud climatisé avec son petit balcon, 3 grandes chambres avec dressing dont 2 en suites parentales, 2 salles de bains, une salle d'eau, 2 WC et une cuisine aménagée / équipée. Une place de stationnement privatif et une cave viennent compléter le confort de ce bien. A visiter sans tarder ! Contactez nous au [Coordonnées masquées] ! Copropriété de 40 lots - dont 28 lots habitation. (Pas de procédure en cours). Charges annuelles : 2600 euros.
Voir plus

Référence: 192
Bien en copropriété. Nombre de lots : 40. Charges de copropriété : 2600 €.
Honoraires à la charge du vendeur.
Barème des honoraires
DPE
A
B
C
D
E
F
G
GES
A
B
C
D
E
F
G

Prêt immobilier

Vous souhaitez connaître votre capacité d’emprunt et trouver le meilleur crédit immobilier ?
Réaliser une simulation gratuite

Appartement à CANNES
Appartement à CANNES
Appartement à CANNES
Appartement à CANNES
Appartement à CANNES
Appartement à CANNES
Appartement à CANNES
Appartement à CANNES
Appartement à CANNES
Appartement à CANNES
Appartement à CANNES
Appartement à CANNES
Appartement à CANNES
Appartement à CANNES
Appartement à CANNES
Appartement à CANNES
Ce site est protégé par reCAPTCHA la Politique de confidentialité et les Conditions d’utilisation de Google s’appliquent.
Obtenir un prêt immobilier au meilleur taux ?

En poursuivant votre navigation sans modifier vos paramètres, vous acceptez l'utilisation de cookies susceptibles de réaliser des statistiques de visite. Cliquez ici pour plus d'informations