Bénéficiez des services de nos partenaires locaux soigneusement sélectionnés
pour vous accompagner dans votre parcours d'achat immobilier

Appartement t4, traversant avec stationnement et cave

— Rodez 12000 —
95 000 €
79 m²
4 pièces
parking

Nos partenaires locaux
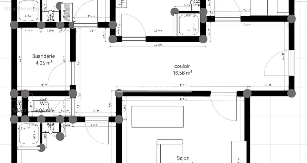
Proche du centre-ville de Rodez, venez découvrir cet agréable appartement traversant de 79 m², idéalement situé dans un quartier prisé.

Ce bien offre un spacieux séjour lumineux, bénéficiant d'une vue sur la cour intérieure de l'immeuble, créant ainsi un cadre calme et agréable. La cuisine est entièrement équipée.

Vous apprécierez les trois chambres généreuses, idéales pour accueillir votre famille ou aménager un bureau, ainsi qu'une salle d'eau et un WC séparé, offrant un confort optimal.

Un atout majeur : cet appartement bénéficie d'un stationnement double, vous offrant ainsi un espace sécurisé pour vos véhicules, ainsi qu'une cave pratique pour vos rangements supplémentaires.

De plus, dans le cadre de l'Assemblée Générale 2025, les travaux d'isolation de la toiture et du plancher ont été votés et seront pris en charge par le propriétaire. Cela vous garantit un confort thermique amélioré, une gestion de la consommation énergétique optimisée ainsi qu'un DPE réajusté
Voir plus

Référence: 00599613
Bien en copropriété. Nombre de lots : 20. Charges de copropriété : 203 €.
Honoraires à la charge du vendeur.
Barème des honoraires
DPE
A
B
C
D
E
F
G
GES
A
B
C
D
E
F
G

Prêt immobilier

Vous souhaitez connaître votre capacité d’emprunt et trouver le meilleur crédit immobilier ?
Réaliser une simulation gratuite

Appartement à RODEZ
Appartement à RODEZ
Appartement à RODEZ
Appartement à RODEZ
Appartement à RODEZ
Appartement à RODEZ
Appartement à RODEZ
Appartement à RODEZ
Appartement à RODEZ
Appartement à RODEZ
Ce site est protégé par reCAPTCHA la Politique de confidentialité et les Conditions d’utilisation de Google s’appliquent.
Obtenir un prêt immobilier au meilleur taux ?

En poursuivant votre navigation sans modifier vos paramètres, vous acceptez l'utilisation de cookies susceptibles de réaliser des statistiques de visite. Cliquez ici pour plus d'informations