Bénéficiez des services de nos partenaires locaux soigneusement sélectionnés
pour vous accompagner dans votre parcours d'achat immobilier

Programme Neuf 'Villa Saint Jean'

— Saint-Jean-De-Monts 85160 —
299 000 €
84 m²
4 pièces

Nos partenaires locaux
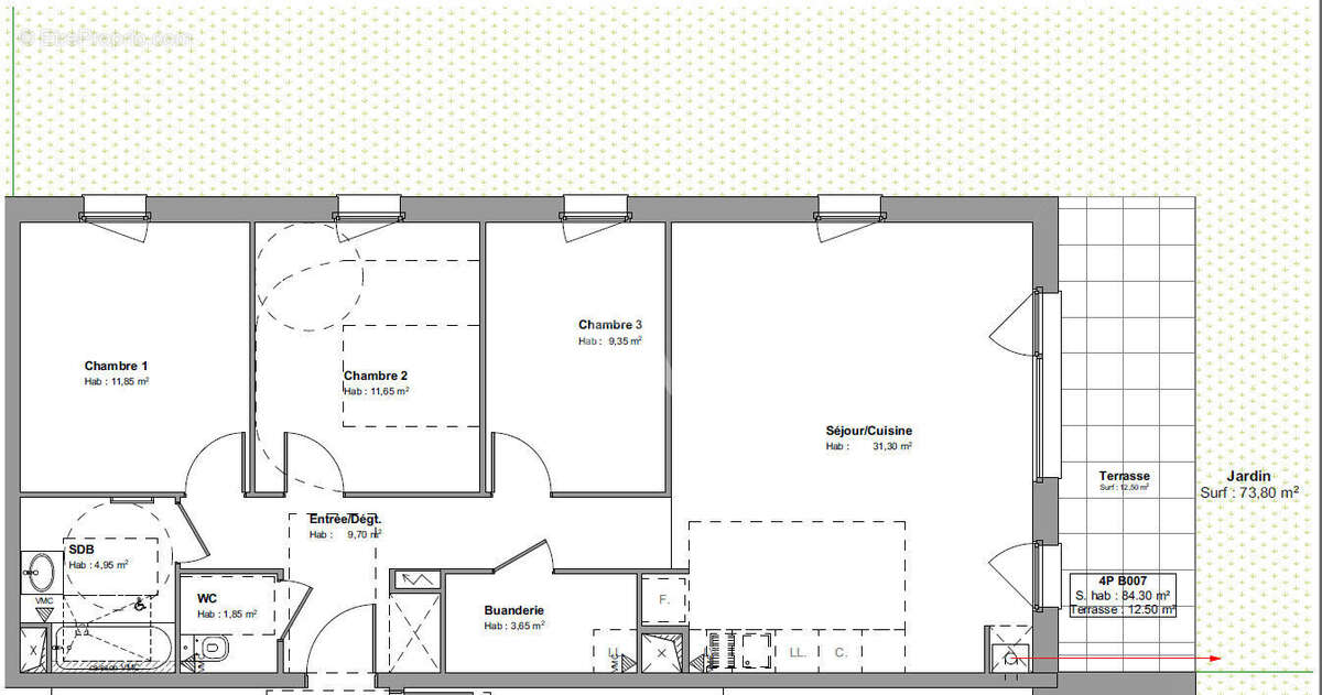
PROGRAMME NEUF - SAINT JEAN DE MONTS - VILLA SAINT JEAN - LIVRAISON IMMEDIATE Idéalement située, à 600 m du centre-ville, à 300 m de la Forêt Domaniale et à 1,5 km de la Plage des Oiseaux, dans la résidence 'Villa Saint Jean', un appartement de Type 4 situé au rez-de-chaussée et offrant de belles prestations. Local à vélos. Parking privatif en sus. Frais de notaire réduits. Documentation complète sur demande. Réf.8779-B007 Pour toute information complémentaire ou visite, contactez-nous au [Coordonnées masquées] ou par mail [Coordonnées masquées]
Voir plus

Référence: 10817
Honoraires à la charge du vendeur.
Barème des honoraires
Appartement à SAINT-JEAN-DE-MONTS
Appartement à SAINT-JEAN-DE-MONTS
Appartement à SAINT-JEAN-DE-MONTS
Géorisques

Les informations sur les risques auxquels ce bien est exposé sont disponibles sur le site Géorisques : www.georisques.gouv.fr

Ce site est protégé par hCaptcha Politique de confidentialité et Conditions d’utilisation s’appliquent.