Bénéficiez des services de nos partenaires locaux soigneusement sélectionnés
pour vous accompagner dans votre parcours d'achat immobilier

Terrain 405m² à fuveau

— Fuveau 13710 —
250 000 €
405 m²

Nos partenaires locaux
3 Terrains Constructibles de 405m² Fuveau
Rémy Marchand 07x86x11x38x42

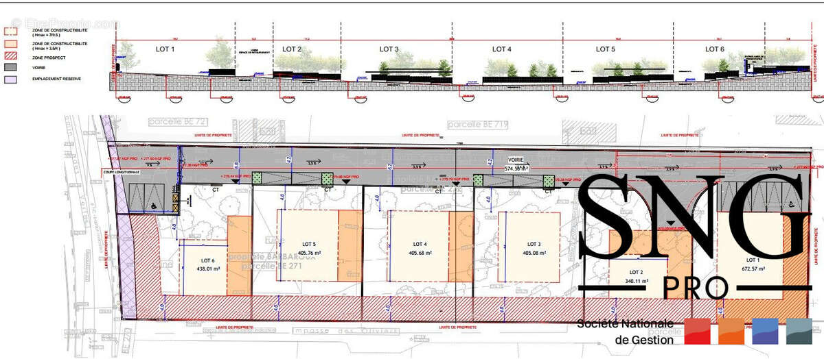
Plusieurs terrains constructibles et viabilisés et clôturés

3 terrain de 405m²

Niché dans le charmant village de Fuveau à proximité du centre, avec une surface de planché de 150 m²maximum , les possibilités sont infinies. Vous pouvez créer une maison spacieuse et lumineuse, parfaite pour accueillir votre famille et vos amis.
Dans un domaine privé dont l'accès collectif est sécurisé par un portail .5 parcelles viabilisées et clôturées à destination de villas individuelles et une parcelle à destination d'un petit collectif de 4 logements

Prise en charge par le vendeur du bassin de rétention collectif des eaux pluviales pour l'ensemble des lots => économie pour chaque acquéreur d'environ 15 k€ si bassin individuel

Prix de vente 250 000€ honoraires inclus charge vendeur

Ne manquez pas cette opportunité unique de construire votre rêve dans un cadre idyllique. Contactez-nous dès aujourd'hui pour organiser une visite et découvrir tout le potentiel de ce terrain exceptionnel.





Honoraires à la charge du vendeur. Les informations sur les risques auxquels ce bien est exposé sont disponibles sur le site Géorisques : georisques.gouv.fr.

Retrouvez l'annonce de l'agence immobilière SNG PRO sur : https://www.sng-immobilier.com/ref/VT113
Voir plus

Référence: VT113-SNG
Honoraires à la charge du vendeur.
Barème des honoraires

Prêt immobilier

Vous souhaitez connaître votre capacité d’emprunt et trouver le meilleur crédit immobilier ?
Réaliser une simulation gratuite

Terrain à FUVEAU
Terrain à FUVEAU
Terrain à FUVEAU
Terrain à FUVEAU
Terrain à FUVEAU
Ce site est protégé par reCAPTCHA la Politique de confidentialité et les Conditions d’utilisation de Google s’appliquent.
Obtenir un prêt immobilier au meilleur taux ?

En poursuivant votre navigation sans modifier vos paramètres, vous acceptez l'utilisation de cookies susceptibles de réaliser des statistiques de visite. Cliquez ici pour plus d'informations