Bénéficiez des services de nos partenaires locaux soigneusement sélectionnés
pour vous accompagner dans votre parcours d'achat immobilier

Maison 167m² à bordeaux

— Bordeaux 33800 —
610 000 €
167 m²
5 pièces
parking

Nos partenaires locaux
Iad France - Séverine Raimundo vous propose : Loft + Garage proche Place de la Victoire et Gare Saint Jean

Venez découvrir cet ancien atelier aménagé en Loft d'une superficie de 167 m² avec garage.

Situé dans une rue calme de Bordeaux, à proximité immédiate des commodités (transport, commerces, écoles) à 15 min à pied de la place de la Victoire et à 600m de la gare St Jean. Ce loft spacieux et lumineux saura vous séduire avec ses belles hauteurs sous plafond et ses beaux volumes modernes et confortables.

Au rez-de-chaussée, vous découvrirez un vaste séjour de 70 m² offrant un espace de vie convivial, une cuisine équipée fonctionnelle, deux chambres, une salle de bains, un w-c, un cellier et un accès direct au garage.

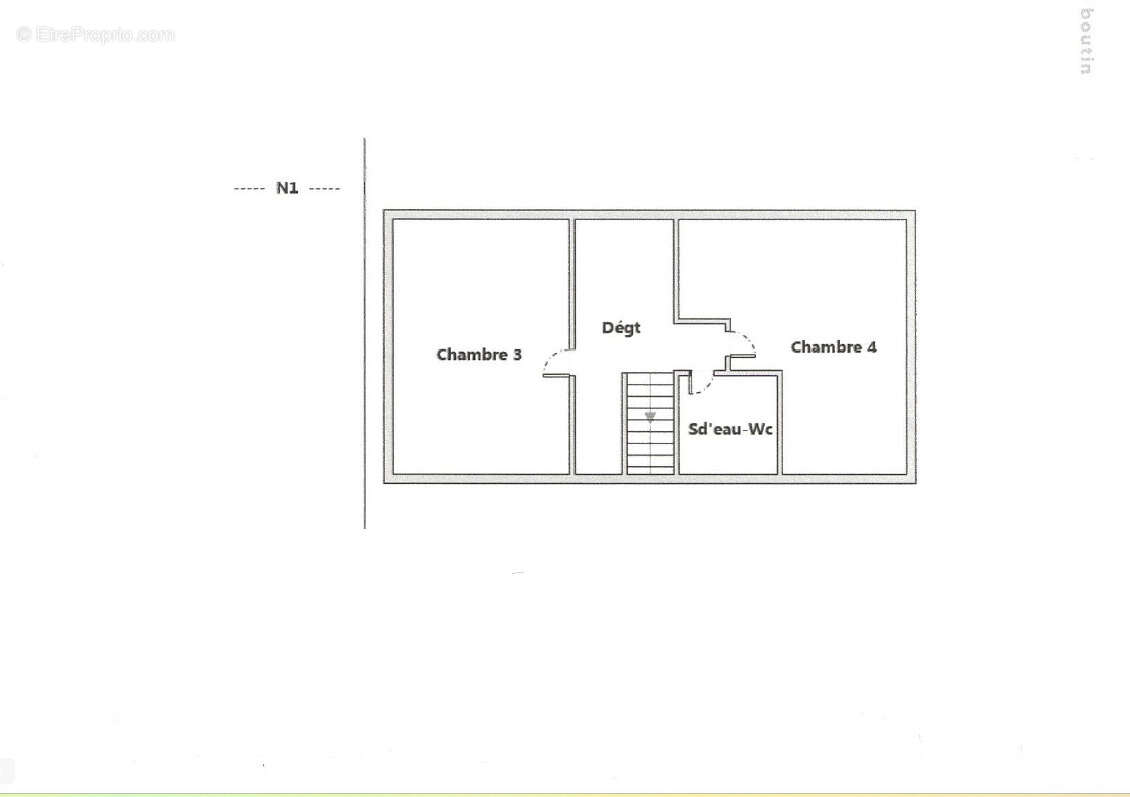
À l'étage, vous trouverez une belle mezzanine ainsi que deux grandes chambres, une salle d'eau et un w-c.

Aucun travaux à prévoir ! À visiter sans tarder!



Honoraires d'agence à la charge du vendeur.
Information d'affichage énergétique sur ce bien : classe ENERGIE D indice 167 et classe CLIMAT D indice 34. Les informations sur les risques auxquels ce bien est exposé, y compris l'obligation légale de débroussaillement, sont disponibles sur le site Géorisques : http://www.georisques.gouv.fr.
La présente annonce immobilière a été rédigée sous la responsabilité éditoriale de Mme Séverine Raimundo mandataire indépendant en immobilier (sans détention de fonds), agent commercial de la SAS I@D France immatriculé au RSAC de Bordeaux sous le numéro 907634620, titulaire de la carte de démarchage immobilier pour le compte de la société I@D France SAS.
Informations LOI ALUR :
Honoraires charge vendeur. (gedeon_6727_30550188)
Voir plus

Référence: 1676657
Honoraires à la charge du vendeur.
DPE
A
B
C
D
E
F
G
GES
A
B
C
D
E
F
G

Prêt immobilier

Vous souhaitez connaître votre capacité d’emprunt et trouver le meilleur crédit immobilier ?
Réaliser une simulation gratuite

Photo 1 - Maison à BORDEAUX
Photo 1
Photo 2 - Maison à BORDEAUX
Photo 2
Photo 3 - Maison à BORDEAUX
Photo 3
Photo 4 - Maison à BORDEAUX
Photo 4
Photo 5 - Maison à BORDEAUX
Photo 5
Photo 6 - Maison à BORDEAUX
Photo 6
Photo 7 - Maison à BORDEAUX
Photo 7
Photo 8 - Maison à BORDEAUX
Photo 8
Photo 9 - Maison à BORDEAUX
Photo 9
Ce site est protégé par reCAPTCHA la Politique de confidentialité et les Conditions d’utilisation de Google s’appliquent.
Obtenir un prêt immobilier au meilleur taux ?

En poursuivant votre navigation sans modifier vos paramètres, vous acceptez l'utilisation de cookies susceptibles de réaliser des statistiques de visite. Cliquez ici pour plus d'informations