Maison 62m² à bray-dunes

— Bray-Dunes 59123 —
274 600 €
62 m²
3 pièces
parkingbalcon/terrasse

Maison proche plage à Bray-Dunes

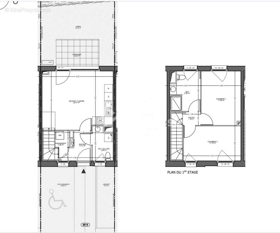
Située à environ 700 mètres de la plage de Bray-Dunes, cette maison d'environ 62 m² vous offre un cadre de vie idyllique. Avec ses deux niveaux et ses trois pièces, elle est parfaite pour une petite famille ou un couple souhaitant profiter de la tranquillité et du confort. La maison est équipée de deux chambres spacieuses, d'une salle d'eau moderne et de deux toilettes, offrant ainsi un confort optimal.

Le séjour cuisine, baigné de lumière naturelle grâce à son exposition sud et ouvert sur une terrasse d'environ 6 m2 et un jardin d'environ 22 m2 également exposé sud.

La maison dispose également d'un stationnement extérieur et est conforme aux normes PMR, garantissant ainsi un accès facile pour tous. Le chauffage individuel assure, grâce à une pompe à chaleur, une ambiance chaleureuse en toute saison.

Située à proximité de toutes les commodités essentielles, à seulement 10 minutes à pied, vous trouverez un arrêt de bus, un supermarché, plusieurs restaurants, un parc, la plage et les dunes protégées.
Bray-Dunes se trouve à environ 45 minutes en voiture de Lille et environ 1h45 de Bruxelles.

Ne manquez pas l'opportunité de vivre dans cette maison qui allie confort et praticité. Contactez-moi dès aujourd'hui pour découvrir tout le potentiel de cette maison disponible à partir de 2027.

Honoraires à la charge du vendeur. Non soumis au DPE. Les informations sur les risques auxquels ce bien est exposé sont disponibles sur le site Géorisques : georisques.gouv.fr.

Votre conseiller We Invest France : Benjamin Barbier
Agent commercial (Entreprise individuelle)
RSAC 817938822
Voir plus

Référence: VM662
Honoraires à la charge du vendeur.
Barème des honoraires

Prêt immobilier

Vous souhaitez connaître votre capacité d’emprunt et trouver le meilleur crédit immobilier ?
Réaliser une simulation gratuite

Maison à BRAY-DUNES
Maison à BRAY-DUNES
Maison à BRAY-DUNES
Maison à BRAY-DUNES
Ce site est protégé par reCAPTCHA la Politique de confidentialité et les Conditions d’utilisation de Google s’appliquent.
Obtenir un prêt immobilier au meilleur taux ?

En poursuivant votre navigation sans modifier vos paramètres, vous acceptez l'utilisation de cookies susceptibles de réaliser des statistiques de visite. Cliquez ici pour plus d'informations