Bénéficiez des services de nos partenaires locaux soigneusement sélectionnés
pour vous accompagner dans votre parcours d'achat immobilier

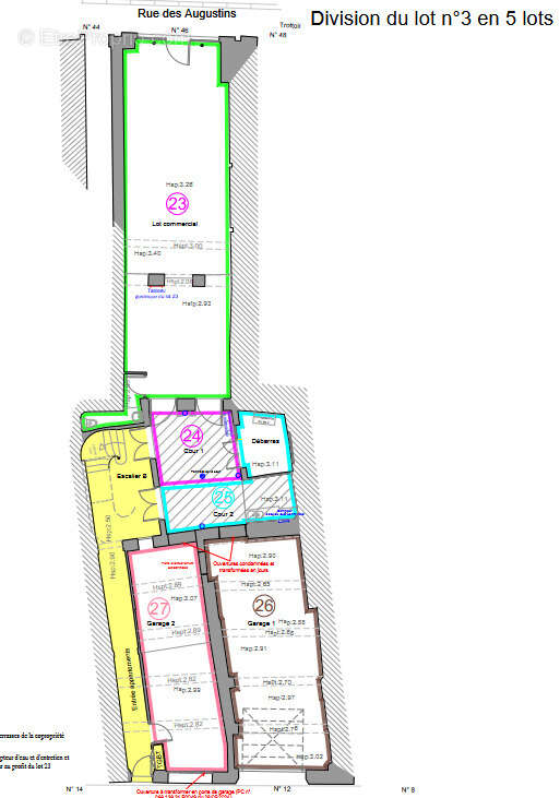
Perpignan centre historique garage individuel 38m2 !

— Perpignan 66000 —
39 500 €
38 m²

Nos partenaires locaux
Perpignan, La Real Centre Historique grand garage de 38m2 centre ville. 3 minutes à pied de la place république ! Lotno26 du plan, Opportunité rare sur le marché, le garage voisin de 27m2 (lot no27 du plan) est également en vente, ainsi que le local commercial (lot no23 du plan) à l'avant d'une surface de plus de 66m2 au prix de 150 000 € libre de toute occupation ! N'hésitez pas à nous contacter pour toutes questions ou visite de ces biens ! Pour ce qui est du prix de vente, il est de 39500 €. taxe foncière 290€ [Coordonnées masquées] ou [Coordonnées masquées]
Voir plus

Référence: 145
Bien en copropriété.
Honoraires à la charge du vendeur.
Barème des honoraires

Prêt immobilier

Vous souhaitez connaître votre capacité d’emprunt et trouver le meilleur crédit immobilier ?
Réaliser une simulation gratuite

Parking à PERPIGNAN
Parking à PERPIGNAN
Parking à PERPIGNAN
Parking à PERPIGNAN
Parking à PERPIGNAN
Parking à PERPIGNAN
Ce site est protégé par reCAPTCHA la Politique de confidentialité et les Conditions d’utilisation de Google s’appliquent.
Obtenir un prêt immobilier au meilleur taux ?

En poursuivant votre navigation sans modifier vos paramètres, vous acceptez l'utilisation de cookies susceptibles de réaliser des statistiques de visite. Cliquez ici pour plus d'informations