Bénéficiez des services de nos partenaires locaux soigneusement sélectionnés
pour vous accompagner dans votre parcours d'achat immobilier

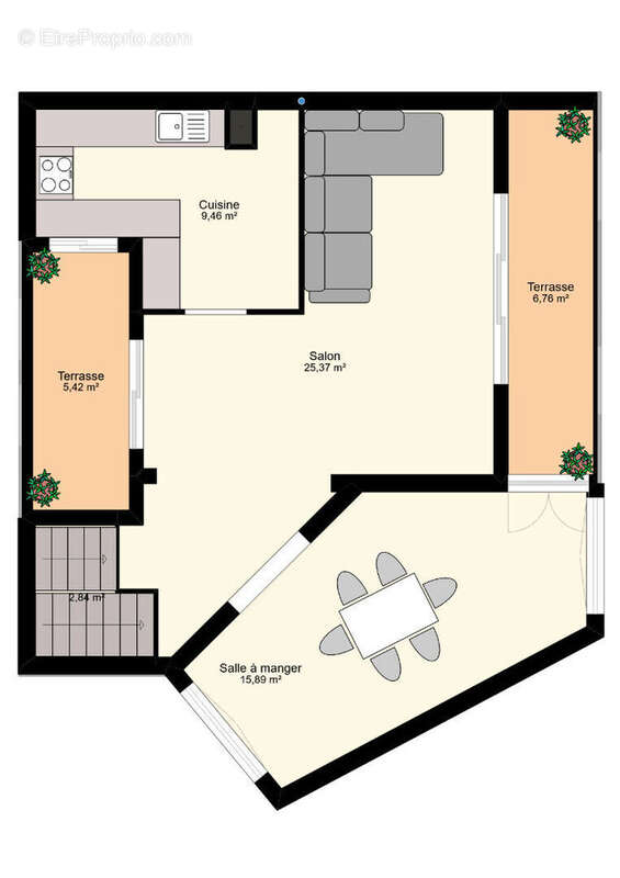
Appartement vitrolles 4 pièce(s) 98 m²

— Vitrolles 13127 —
285 000 €
98 m²
5 pièces
balcon/terrasse

Nos partenaires locaux
RARE A LA VENTE : Très bel appartement duplex de 100 m² environ entièrement rénové, composé de 5 pièces principales, comprenant salon, séjour, cuisine indépendante équipée, salle d'eau avec toilette, 3 chambres, dressing, nombreux rangements, fenêtres double vitrage ALU et PVC, volets roulants électriques, climatisation réversible. Appartement avec de très belles prestations, UNIQUE SUR LE MARCHE, proche écoles, parcs et commerces à pied. Copropriété de 4 lots (). Charges annuelles : 1200 euros.
Voir plus

Référence: 10321
Bien en copropriété. Nombre de lots : 4. Charges de copropriété : 1200 €.
Honoraires à la charge du vendeur.
Barème des honoraires
DPE
A
B
C
D
E
F
G
GES
A
B
C
D
E
F
G

Prêt immobilier

Vous souhaitez connaître votre capacité d’emprunt et trouver le meilleur crédit immobilier ?
Réaliser une simulation gratuite

Appartement à VITROLLES
Appartement à VITROLLES
Appartement à VITROLLES
Appartement à VITROLLES
Appartement à VITROLLES
Appartement à VITROLLES
Appartement à VITROLLES
Appartement à VITROLLES
Appartement à VITROLLES
Appartement à VITROLLES
Appartement à VITROLLES
Appartement à VITROLLES
Appartement à VITROLLES
Ce site est protégé par reCAPTCHA la Politique de confidentialité et les Conditions d’utilisation de Google s’appliquent.
Obtenir un prêt immobilier au meilleur taux ?

En poursuivant votre navigation sans modifier vos paramètres, vous acceptez l'utilisation de cookies susceptibles de réaliser des statistiques de visite. Cliquez ici pour plus d'informations