Coup de cœur! duplex de 88 m2 + extérieurs de 23m2 / ensoleillé et dernier étage - 2017 - rue jules lagaisse 94400 vitry-sur-sei

— Vitry-Sur-Seine 94400 —
419 000 €
95 m²
4 pièces
parkingbalcon/terrasseascenseur

Hosman vous propose à la vente ce 4 pièces d'une surface de 86.96 m2 Carrez, situé Rue Jules Lagaisse à Vitry-sur-Seine. (Surface au sol : 88,14 m2)
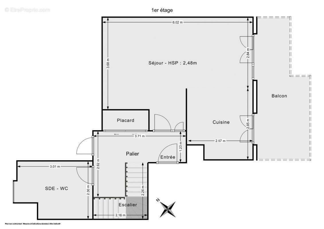
Surface totale : 111m2

L'appartement est situé au dernier étage (5/5) d'un immeuble récent de 2017 très bien tenu et sécurisé avec ascenseur et accès PMR.

Le bien, en duplex inversé, propose une distribution idéale et se compose :
Au 5e niveau ;
D'une entrée avec grand placard,
D'un séjour, exposé Sud Ouest donnant sur une agréable terrasse ensoleillée de 16m2 sans vis à vis,
D'une cuisine ouverte équipée avec accès terrasse,
D'une première chambre (non visible sur le plan et visite 3D),
D'une première salle d'eau avec douche, WC, sèche serviette, VMC et emplacement lave linge,

L'entrée dessert un escalier menant au niveau inférieur (4ème) distribuant ;
2 chambres avec placard dont une donnant sur un balcon de 5m2
Une salle de bains avec double vasque, baignoire et WC.

Une cave et un parking (double-place de 24 m2) sont proposés en sus du prix.
Un local à vélo est également présent dans l'immeuble.

Quartier résidentiel et calme, proposant des commerces de proximité. Côté transports, le Tramway (T9) se trouve à proximité immédiate et permet de rejoindre la Porte de Choisy (Métro ligne 7) en quelques minutes. La ligne 7 est également accessible à pieds (15 min) et la future ligne de métro à 10 mins.
Ecoles et collèges se trouvent également à deux pas.

Le système de chauffage est collectif et l'appartement possède un excellent DPE.
Les charges de copropriété s'élèvent à 900€ par trimestre et comprennent l'entretien courant de l'immeuble, le chauffage, l'eau chaude et froide (compteur individuel ; consommation individuelle).
La taxe foncière est de 1500€

Le bien est soumis au statut de copropriété.

Hosman s'efforce de réinventer l'agence immobilière en offrant un service innovant et transparent aux acheteurs et aux vendeurs. Nos frais d'agence sont de 7900 euros fixes à la charge du vendeur.
Si vous êtes un professionnel de l'immobilier (agent, mandataire ou chasseur immobilier) sachez que toutes les annonces Hosman sont ouvertes à la collaboration. N'hésitez pas à nous contacter pour en discuter.
Voir plus

Référence: b2535b
Bien en copropriété. Charges de copropriété : 300 €.
Honoraires à la charge du vendeur.
DPE
A
B
C
D
E
F
G
GES
A
B
C
D
E
F
G

Prêt immobilier

Vous souhaitez connaître votre capacité d’emprunt et trouver le meilleur crédit immobilier ?
Réaliser une simulation gratuite

Appartement à VITRY-SUR-SEINE
Appartement à VITRY-SUR-SEINE
Appartement à VITRY-SUR-SEINE
Appartement à VITRY-SUR-SEINE
Appartement à VITRY-SUR-SEINE
Appartement à VITRY-SUR-SEINE
Appartement à VITRY-SUR-SEINE
Appartement à VITRY-SUR-SEINE
Appartement à VITRY-SUR-SEINE
Appartement à VITRY-SUR-SEINE
Appartement à VITRY-SUR-SEINE
Appartement à VITRY-SUR-SEINE
Appartement à VITRY-SUR-SEINE
Ce site est protégé par reCAPTCHA la Politique de confidentialité et les Conditions d’utilisation de Google s’appliquent.
Obtenir un prêt immobilier au meilleur taux ?

En poursuivant votre navigation sans modifier vos paramètres, vous acceptez l'utilisation de cookies susceptibles de réaliser des statistiques de visite. Cliquez ici pour plus d'informations