Appartement 61m² à cucq

— Cucq 62780 —
302 500 €
61 m²
3 pièces
parkingbalcon/terrasseascenseur

Appartement Stella Plage

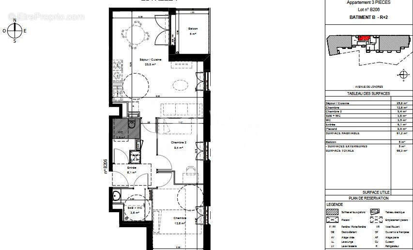
Découvrez cet appartement T3 situé dans la station balnéaire de Stella Plage, au coeur de la Côte d'Opale. Avec ses 61.20 m² de surface habitable, cet appartement offre un cadre de vie de idéal pour investir ou pour profiter d'une seconde résidence en bord de mer.

L'appartement est situé au deuxième étage avec ascenseur. Il dispose d'une pièce à vivre donnant accès à un balcon de 5 m², orienté à l'est, qui vous permettra de profiter de magnifiques levers de soleil, 2 chambres, une salle de bains et un WC.
Au sous-sol de la résidence, vous trouverez une place de stationnement privative ainsi qu'un local à vélo collectif.

Le chauffage collectif assure un confort thermique optimal tout au long de l'année.

Cet appartement est idéalement situé, à proximité de nombreuses commodités. En quelques minutes à pied, vous trouverez une alimentation générale, des restaurants et à moins de 15 minutes un parc et la plage vous offrant de beaux espaces et paysages.

Stella Plage est une station balnéaire de la commune de Cucq, située par la route, à 11 minutes du Touquet Paris plage, 1h55 de Lille, 3h de Paris et 3h de Bruxelles.

Ne manquez pas cette opportunité d'investir dans cette résidence en bords de mer qui sera disponible à partir de 2026. Contactez moi dès aujourd'hui au [Coordonnées masquées]

Honoraires à la charge du vendeur. Non soumis au DPE. Les informations sur les risques auxquels ce bien est exposé sont disponibles sur le site Géorisques : georisques.gouv.fr.

Votre conseiller We Invest France : Benjamin Barbier
Agent commercial (Entreprise individuelle)
RSAC 817938822
Voir plus

Référence: VA11041
Honoraires à la charge du vendeur.
Barème des honoraires

Prêt immobilier

Vous souhaitez connaître votre capacité d’emprunt et trouver le meilleur crédit immobilier ?
Réaliser une simulation gratuite

Appartement à CUCQ
Appartement à CUCQ
Appartement à CUCQ
Appartement à CUCQ
Appartement à CUCQ
Ce site est protégé par reCAPTCHA la Politique de confidentialité et les Conditions d’utilisation de Google s’appliquent.
Obtenir un prêt immobilier au meilleur taux ?

En poursuivant votre navigation sans modifier vos paramètres, vous acceptez l'utilisation de cookies susceptibles de réaliser des statistiques de visite. Cliquez ici pour plus d'informations