Maison chevreuse 5 pièce(s) 101 m2

— Chevreuse 78460 —
460 000 €
101 m² / 160 m²
5 pièces
jardin

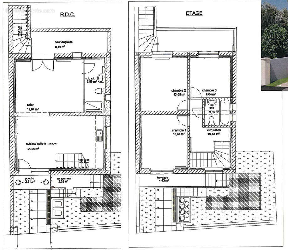
Maison entièrement rénovée avec des matériaux de qualité située dans un quartier calme et résidentiel de Chevreuse. Au rez de chaussée vous trouverez une entrée donnant directement sur la salle à manger et une cuisine ouverte puis un salon comprenant une pièce d'eau avec WC et donnant sur une cour anglaise avec accès au jardin. A l'étage se trouve un palier pouvant faire office de bureau et donnant sur 3 chambres et une salle de bains avec WC. Fenêtres doubles vitrages et volets roulants électriques en aluminium, chauffage à inertie électrique, Terrasse extérieure orientée SUD et EST, Terrain de 160m², abris à conteneurs, espace de rangement avec point d'eau, place de parking. Ecoles primaires en 17 min et gare RER en 20 min à pied Maison disponible en MAI 2025
Voir plus

Référence: 530
Honoraires à la charge du vendeur.
Barème des honoraires

Prêt immobilier

Vous souhaitez connaître votre capacité d’emprunt et trouver le meilleur crédit immobilier ?
Réaliser une simulation gratuite

Maison à CHEVREUSE
Maison à CHEVREUSE
Maison à CHEVREUSE
Maison à CHEVREUSE
Maison à CHEVREUSE
Maison à CHEVREUSE
Maison à CHEVREUSE
Maison à CHEVREUSE
Maison à CHEVREUSE
Ce site est protégé par reCAPTCHA la Politique de confidentialité et les Conditions d’utilisation de Google s’appliquent.
Obtenir un prêt immobilier au meilleur taux ?

En poursuivant votre navigation sans modifier vos paramètres, vous acceptez l'utilisation de cookies susceptibles de réaliser des statistiques de visite. Cliquez ici pour plus d'informations