Bénéficiez des services de nos partenaires locaux soigneusement sélectionnés
pour vous accompagner dans votre parcours d'achat immobilier

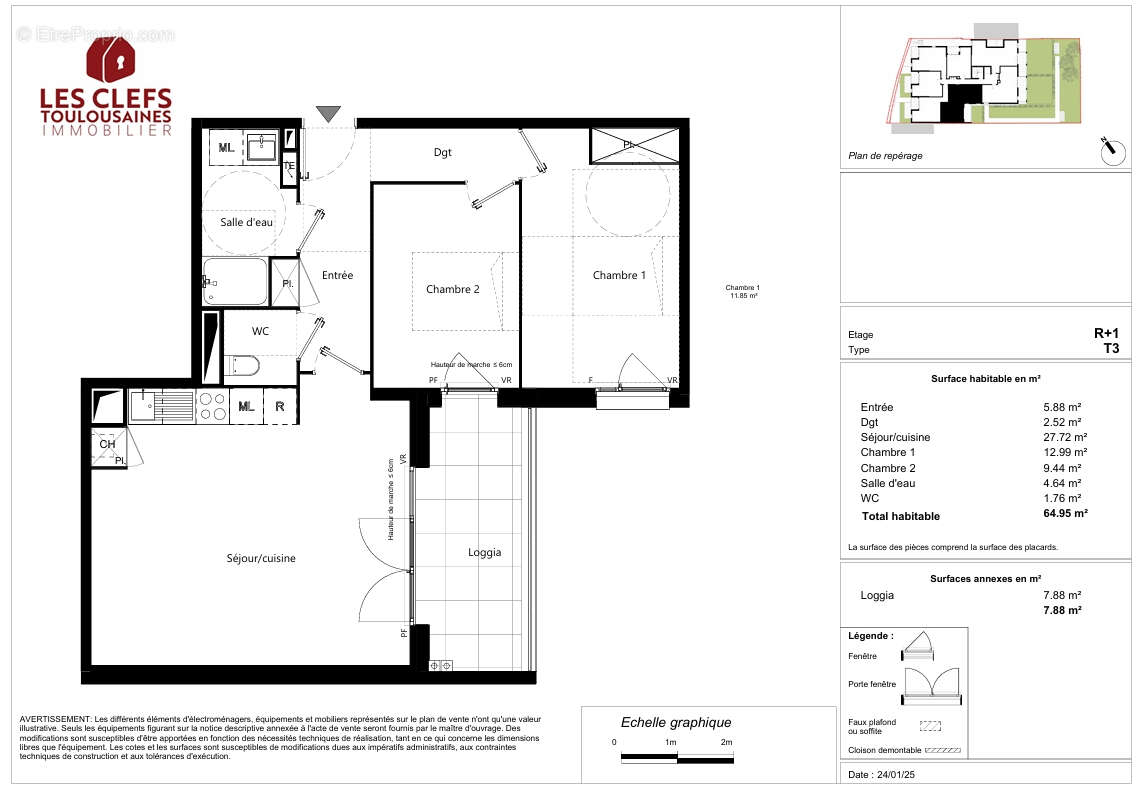
Appartement toulouse 3 pièces 61 m² + loggia 8 m² minimes canal du midi

— Toulouse 31200 —
244 800 €
61 m²
3 pièces

Nos partenaires locaux
OPPORTUNITE RARE ! Sous conditions de revenus en TVA réduité à 5.5 % Prix hors dispositif 278.500 euros Appartement 3 pièces de 65m² avec un loggia de 8 m2, dans une petite résidence à taille humaine de 29 logements, située dans le beau quartier MINIMES. Une adresse de prestige à deux pas du Canal du Midi et du centre ville de Toulouse. - Agréable séjour très lumineux de 28 m² ouvert sur cuisine, le tout donnant accès au beau loggia de 8 m² exposée Ouest, -1 grande chambre de 13 m², -1 chambre de 10 m², -1 salle d'eau avec sèche serviettes, - Espace entrée avec WC séparé, - 1 place de parking avec accès sécurisé, - 2 local 2 roues, - Belles prestations : parquet dans les chambres, volets roulants électriques, large baie vitrée... - Proximité Gare Matabiau, Station Métro (4 mn), écoles maternelle et primaire, tous commerces, périphérique, aéroport de Toulouse Blagnac... - Profitez également d'une étude de financement OFFERTE en 24 heures. Sébastien LARTIGUE LES CLEFS DU NEUF
Voir plus

Barème des honoraires

Prêt immobilier

Vous souhaitez connaître votre capacité d’emprunt et trouver le meilleur crédit immobilier ?
Réaliser une simulation gratuite

Appartement à TOULOUSE
Appartement à TOULOUSE
Appartement à TOULOUSE
Appartement à TOULOUSE
Appartement à TOULOUSE
Ce site est protégé par reCAPTCHA la Politique de confidentialité et les Conditions d’utilisation de Google s’appliquent.
Obtenir un prêt immobilier au meilleur taux ?

En poursuivant votre navigation sans modifier vos paramètres, vous acceptez l'utilisation de cookies susceptibles de réaliser des statistiques de visite. Cliquez ici pour plus d'informations