Miniac-morvan - maison de bourg avec hangar

— Miniac-Morvan 35540 —
450 640 €
175 m² / 603 m²
4 pièces
balcon/terrassejardin

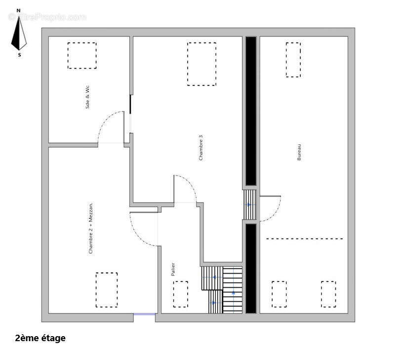
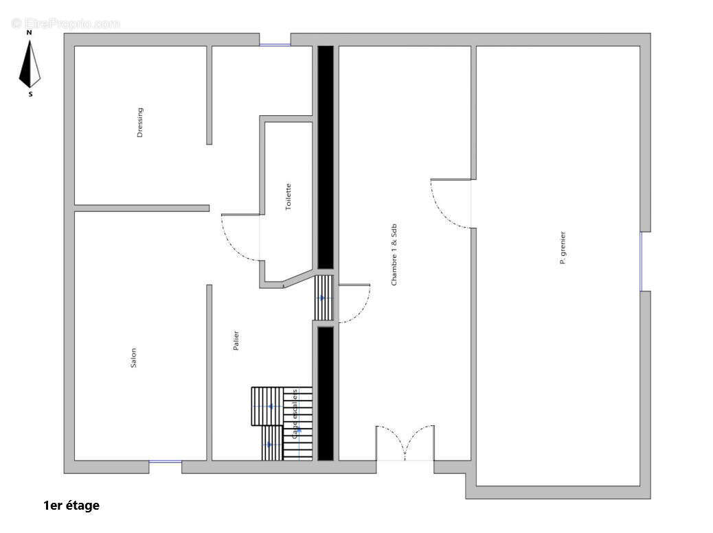
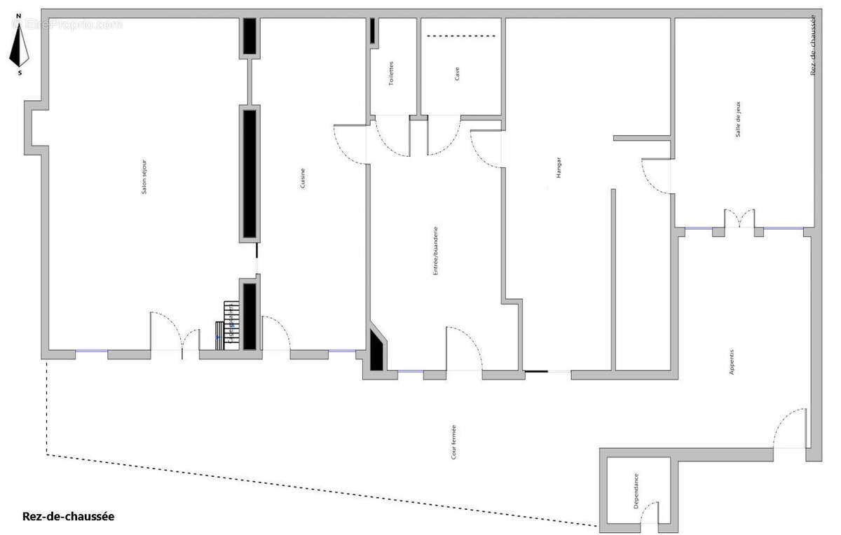
MAISON ROUGE DOL-DE-BRETAGNE propose cette maison sur trois niveaux située à pied des commodités offrant un espace de vie atypique et chaleureux. Le rez-de-chaussée offre un salon séjour, une cuisine indépendante aménagée et équipée, une buanderie, une cave et un WC. Au premier étage la palier dessert une bibliothèque, un dressing, un WC et une suite parentale avec chambre, salle de bains avec douche et baignoire, un potentiel dressing et une mezzanine. Le deuxième étage se compose de deux chambres , une salle d'eau et un bureau en mezzanine qui surplombe la suite parentale du premier. Grand hangar avec grenier idéal pour du stockage, salle de sport/salle de jeux et jardin d'hiver ouvert sur la cour. En complément une parcelle de terrain non attenante d'environ 150 m² vient compléter cet ensemble. N'hésitez plus et venez visiter cette maison qui saura vous charmer par ses beaux volumes et sa rénovation de qualité. Les + : Rénovation de qualité / Commodités à pieds / Exposition SUD / Aucun travaux à prévoir / DPE C / Hangar de stockage MAISON ROUGE DOL-DE-BRETAGNE - 46. Grande Rue des Stuarts [Coordonnées masquées] Prix FAI : 450 640 euros dont 4.80 % honoraires TTC à la charge de l'acquéreur.
Voir plus

Référence: 31687
Honoraires d'agence de 4.8% à la charge de l'acquéreur
Barème des honoraires
DPE
A
B
C
D
E
F
G
GES
A
B
C
D
E
F
G

Prêt immobilier

Vous souhaitez connaître votre capacité d’emprunt et trouver le meilleur crédit immobilier ?
Réaliser une simulation gratuite

Maison à MINIAC-MORVAN
Maison à MINIAC-MORVAN
Maison à MINIAC-MORVAN
Maison à MINIAC-MORVAN
Maison à MINIAC-MORVAN
Maison à MINIAC-MORVAN
Maison à MINIAC-MORVAN
Maison à MINIAC-MORVAN
Maison à MINIAC-MORVAN
Maison à MINIAC-MORVAN
Maison à MINIAC-MORVAN
Maison à MINIAC-MORVAN
Maison à MINIAC-MORVAN
Maison à MINIAC-MORVAN
Maison à MINIAC-MORVAN
Maison à MINIAC-MORVAN
Maison à MINIAC-MORVAN
Maison à MINIAC-MORVAN
Maison à MINIAC-MORVAN
Maison à MINIAC-MORVAN
Maison à MINIAC-MORVAN
Maison à MINIAC-MORVAN
Maison à MINIAC-MORVAN
Maison à MINIAC-MORVAN
Ce site est protégé par reCAPTCHA la Politique de confidentialité et les Conditions d’utilisation de Google s’appliquent.
Obtenir un prêt immobilier au meilleur taux ?

En poursuivant votre navigation sans modifier vos paramètres, vous acceptez l'utilisation de cookies susceptibles de réaliser des statistiques de visite. Cliquez ici pour plus d'informations