Maison 135 m2 avec jardin clos et arboré (453m2) entièrement rénovée

— Cebazat 63118 —
385 000 €
135 m² / 453 m²
6 pièces
parkingbalcon/terrassejardin


JAUDE Immobilier vous propose en EXCLUSIVITÉ cette maison ENTIÈREMENT RÉNOVÉE en 2023, offrant 135 m2 habitables avec un jardin de 453 m2, située à Cébazat, en limite de Clermont-Ferrand.
Caractéristiques principales :

Superficie : 135 m2 habitables répartis sur 2 niveaux
Rénovation complète (2023)
Pièce de vie lumineuse : 46 m2 avec une cuisine Haut de Gamme entièrement équipée
Chambres : 4
Salles d’eau : 2
WC : 2
Cave : 18 m2
Jardin : Terrain clos, plat et arboré de 453 m2

Description :
Cette maison de construction traditionnelle (1983), entièrement rénovée en 2023, se trouve dans une impasse tranquille à Cébazat. La rénovation a été soignée et contemporaine, incluant les intérieurs, la façade et les extérieurs.
Cette maison vous séduira par sa luminosité, sa décoration soignée, et le calme de son environnement. Elle bénéficie d'un jardin plat, clos et arboré.
Aucuns travaux à prévoir : il ne vous reste plus qu'à déposer vos valises !
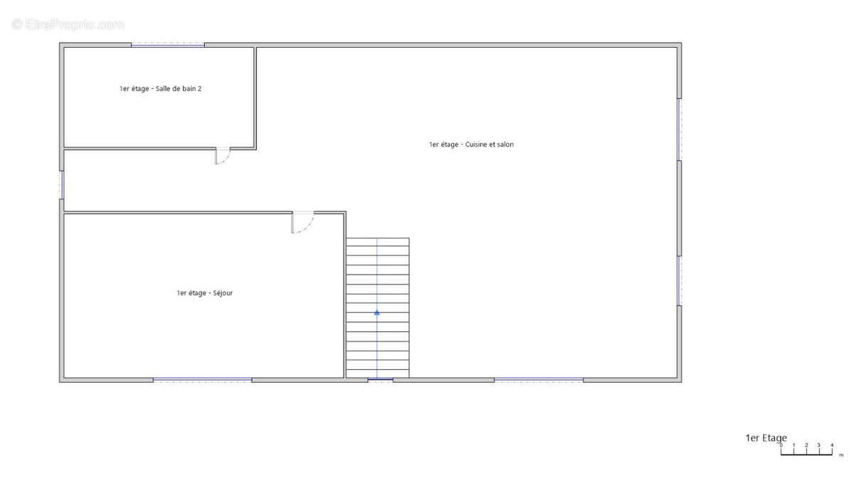
1er Étage :

Une spacieuse pièce de vie de 46 m2 avec une cuisine récente et fonctionnelle, offrant un accès direct au balcon.
1 chambre
1 salle d'eau avec douche à l'italienne + WC

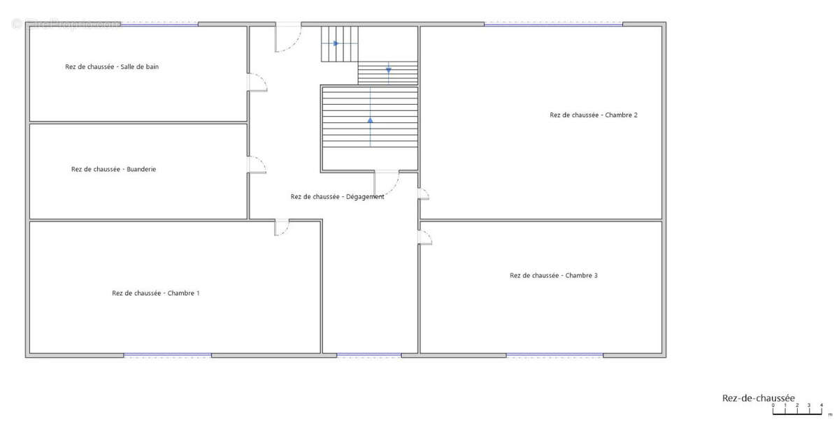
Rez-de-chaussée :

3 chambres spacieuses
1 salle d’eau avec WC
Espace buanderie pratique

Sous-sol :

Une cave isolée de 18 m2, idéale pour le stockage.

Localisation :
Idéalement située entre Cébazat et Clermont-Ferrand, cette maison jouit d'une localisation privilégiée, à proximité des commerces, écoles primaires, transports en commun, et des accès aux autoroutes, tout en étant à l'écart de la circulation.

Confort et nature à seulement 20 minutes de la place de Jaude
Proximité du TRAM (à 900 m) et des commodités
Accès facile aux autoroutes

Points forts :

Aucuns travaux à prévoir - DPE B
Maison lumineuse et fonctionnelle
Double vitrage avec moustiquaires et volets électriques
Chauffage par pompe à chaleur AIR/EAU (radiateurs)
Prestations de qualité et décoration soignée
Ravalement de façade (2023) - Portail Alu motorisé

Extras :

Jardin plat, clos et arboré
Places de stationnement
Terrasse et balcon
Cave isolée de 18 m2 en sous-sol

Les honoraires d’agence sont à la charge du vendeur.
Classe énergétique : B (Nouvelle Réglementation).
Montant estimé des dépenses annuelles d’énergie pour un usage standard : entre 870€ - 1 240€/an.
« Les informations sur les risques auxquels ce bien est exposé sont disponibles sur le site Géorisques : www.georisques.gouv.fr » (décret no2022-1289 du 1er octobre 2022).
Une question, une visite ?
N'hésitez pas à me contacter.
Véronique HUTIN - [Coordonnées masquées] Associée-Négociatrice RSAC CLERMONT-FD no 789 615 341 CCI du Puy-de-Dôme no ADC63[Coordonnées masquées]00144
Voir plus

Référence: 1530
Honoraires à la charge du vendeur.
Barème des honoraires
DPE
A
B
C
D
E
F
G
GES
A
B
C
D
E
F
G

Prêt immobilier

Vous souhaitez connaître votre capacité d’emprunt et trouver le meilleur crédit immobilier ?
Réaliser une simulation gratuite

Maison à CEBAZAT
Maison à CEBAZAT
Maison à CEBAZAT
Maison à CEBAZAT
Maison à CEBAZAT
Maison à CEBAZAT
Maison à CEBAZAT
Maison à CEBAZAT
Maison à CEBAZAT
Maison à CEBAZAT
Maison à CEBAZAT
Maison à CEBAZAT
Maison à CEBAZAT
Maison à CEBAZAT
Maison à CEBAZAT
Maison à CEBAZAT
Maison à CEBAZAT
Ce site est protégé par reCAPTCHA la Politique de confidentialité et les Conditions d’utilisation de Google s’appliquent.
Obtenir un prêt immobilier au meilleur taux ?

En poursuivant votre navigation sans modifier vos paramètres, vous acceptez l'utilisation de cookies susceptibles de réaliser des statistiques de visite. Cliquez ici pour plus d'informations