Bénéficiez des services de nos partenaires locaux soigneusement sélectionnés
pour vous accompagner dans votre parcours d'achat immobilier

Immeuble 5 appartements + cour de 200m2 - 6,5 %

— Marseille-3e 13003 —
530 000 €
200 m²
balcon/terrasse

Nos partenaires locaux
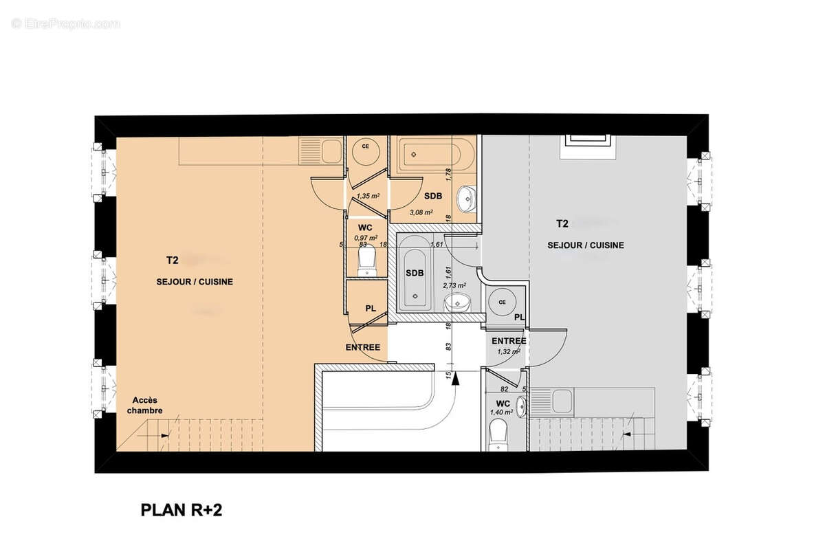
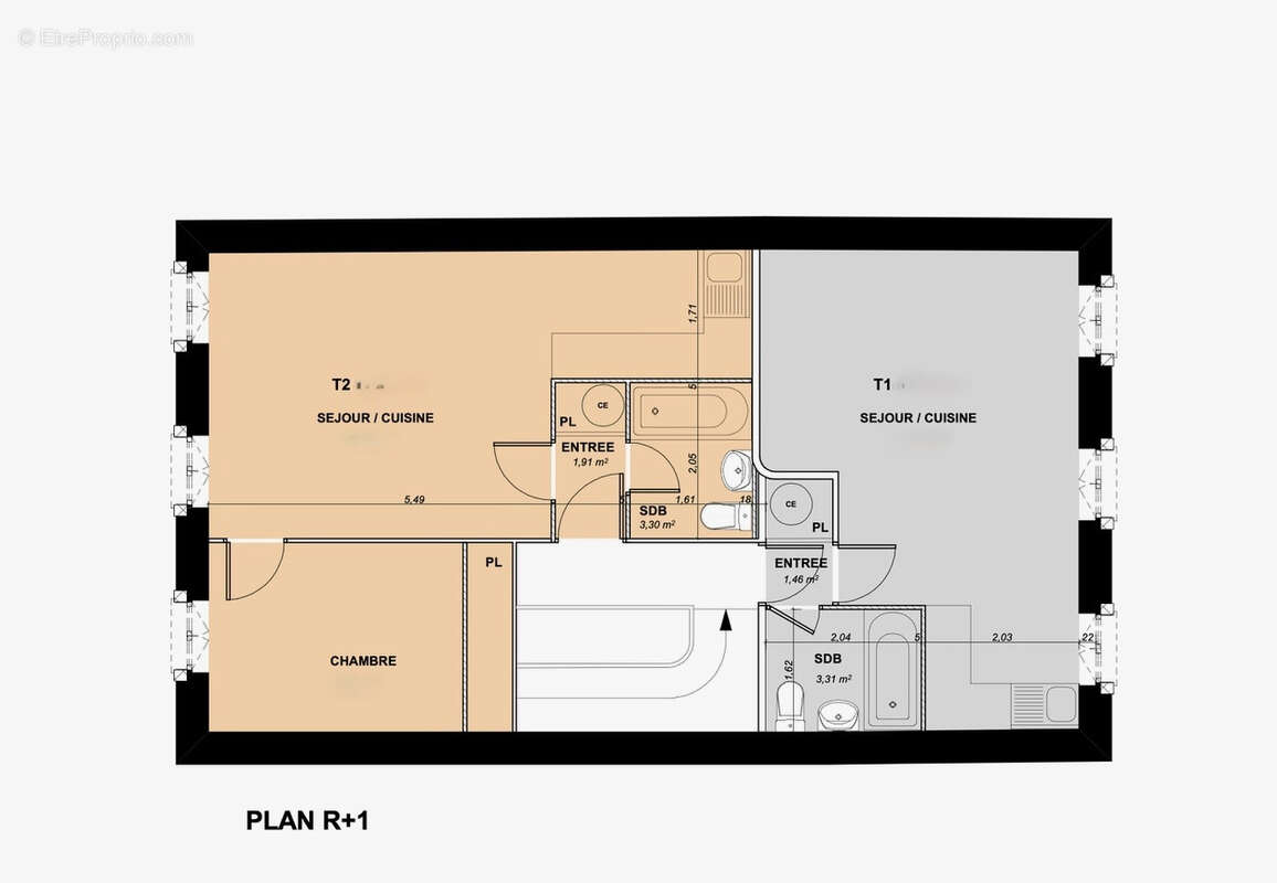
Situé dans la rue Belle de mai, immeuble ancien en bon état en R +2 comprenant : - Au rez-de-chaussée : Un appartement de type 4 de 48 m2 avec cave de 10m2 et une cour de 200m2 ( loyer 800€ HC/mois ). - Au 1er étage, deux appartements entièrement rénovés et actuellement vacants : Côté rue, un T2 de 34,56 m2 LC et coté cour un T1 de 23,88m2 LC. (Loyers estimés à 570€ HC/mois pour le T2 et 500€ HC/ mois pour le T1 ) - Au 2 ème étage , deux appartements en très bon état un T2 en duplex de 43,73m2 LC ( loyer 568 €HC ) et côté cour un T2 en duplex de 38,04m2 LC ( loyer 550 € HC ).
Immeuble bien entretenu : Cage d'escalier rénovée récemment . Façades et toiture en bon état / Rentabilité 6,5 %. Prix : 550 000 € honoraires à la charge du vendeur
Voir plus

Honoraires à la charge du vendeur.
Barème des honoraires
DPE
A
B
C
D
E
F
G
GES
A
B
C
D
E
F
G

Prêt immobilier

Vous souhaitez connaître votre capacité d’emprunt et trouver le meilleur crédit immobilier ?
Réaliser une simulation gratuite

Appartement à MARSEILLE-3E
Appartement à MARSEILLE-3E
Appartement à MARSEILLE-3E
Appartement à MARSEILLE-3E
Appartement à MARSEILLE-3E
Appartement à MARSEILLE-3E
Appartement à MARSEILLE-3E
Appartement à MARSEILLE-3E
Ce site est protégé par reCAPTCHA la Politique de confidentialité et les Conditions d’utilisation de Google s’appliquent.
Obtenir un prêt immobilier au meilleur taux ?

En poursuivant votre navigation sans modifier vos paramètres, vous acceptez l'utilisation de cookies susceptibles de réaliser des statistiques de visite. Cliquez ici pour plus d'informations