Bénéficiez des services de nos partenaires locaux soigneusement sélectionnés
pour vous accompagner dans votre parcours d'achat immobilier

Voir tous les partenaires locaux

Appartement

— Lille 59000 —
395 000 €
71 m²
3 pièces
balcon/terrassejardin

Nos partenaires locaux
LILLE DUPLEX T3 – 71,5 m² AVEC JARDIN – OPPORTUNITÉ RARE !

Efficity Hélène Ponchon, l'agence qui estime votre bien en ligne, vous propose une maison de 71,5 m², idéalement conçue pour allier confort et modernité, avec un jardin privatif de 36 m² pour profiter des beaux jours.
À proximité immédiate du Parc Jean-Baptiste Lebas et du quartier Saint Sauveur.

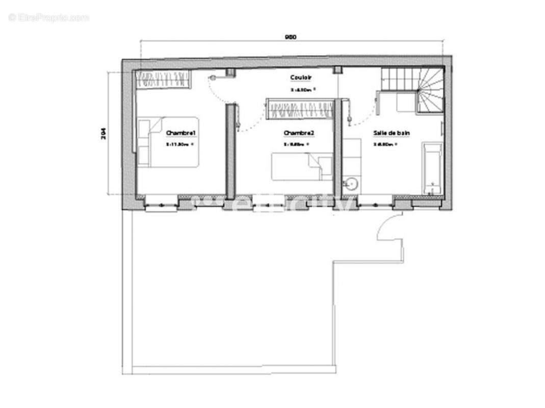
La maison se développe en R+1 avec une disposition comprenant au rez-de-chaussée une pièce de vie salle à manger/séjour avec cuisine, et deux chambres au premier étage, ainsi qu'un jardin privatif en cœur d'ilot.

Ses atouts :
Un espace de vie optimisé : séjour lumineux avec cuisine ouverte pour plus de convivialité
2 belles chambres à l'étage
Salle de bains moderne + WC séparé
Prestations de qualité aux dernières normes énergétiques
Extérieur privatif : terrasse & jardin exposés pour un cadre agréable

Situation idéale : proche des commerces, écoles et transports, pour un quotidien facilité !
Ce bien rare ravira les citadins en quête d'un véritable cocon alliant confort, modernité et tranquillité dans l'un des quartiers les plus prisés de Lille.

Ne manquez pas l'opportunité de devenir propriétaire de ce petit bijou immobilier.
Contactez-nous au [Coordonnées masquées] dès maintenant pour plus d'informations et réserver votre future maison !
Les informations sur les risques auxquels ce bien est exposé sont disponibles sur le site Georisque : georisques. gouv. fr
Hélène Ponchon - EI - est Agent Commercial mandataire en immobilier, immatriculé au Registre Spécial des Agents Commerciaux du Tribunal de Commerce de Lille-Métropole sous le n°529374530.
Siège social du mandant : effiCity, 48 avenue de Villiers - 75017 PARIS - Société par Actions Simplifiée, société au capital de 132 373,05 euros, immatriculée au RCS Paris 497 617 746 et titulaire de la Carte professionnelle CPI 75[Coordonnées masquées]02 025 - CCI Paris IDF - Caisse de Garantie : GALIAN Assurances 89 rue de la Boétie 75008 Paris
Voir plus

Référence: 1745963
Honoraires à la charge du vendeur.
Barème des honoraires

Prêt immobilier

Vous souhaitez connaître votre capacité d’emprunt et trouver le meilleur crédit immobilier ?
Réaliser une simulation gratuite

Appartement à LILLE
Appartement à LILLE
Appartement à LILLE
Appartement à LILLE
Ce site est protégé par reCAPTCHA la Politique de confidentialité et les Conditions d’utilisation de Google s’appliquent.
Obtenir un prêt immobilier au meilleur taux ?

En poursuivant votre navigation sans modifier vos paramètres, vous acceptez l'utilisation de cookies susceptibles de réaliser des statistiques de visite. Cliquez ici pour plus d'informations