3%.com maison familiale avec 4 chambres - jardin

— Steinbourg 67790 —
199 900 €
120 m² / 671 m²
5 pièces
parkingbalcon/terrassejardin

3%.COM l'a vendu !

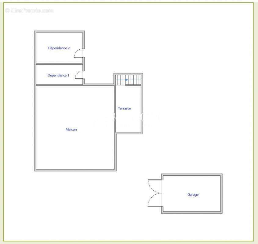
EXCLUSIVITÉ - Au centre de STEINBOURG (route de Saverne), belle maison à rénover de 120m2 avec jardin sur un terrain de 6,71 ares. -- Située à proximité des commodités et à coté du port de plaisance et d'une piste cyclable --- Vous recherchez une maison avec de très beaux volumes, à rénover selon vos goûts avec une véritable qualité de vie dans un village situé aux portes du parc régional des Vosges du Nord, alors venez visiter cette maison. --- Fonctionnelle, idéale pour famille ou artisans/entrepreneurs ! --- Vous trouverez plus photos et des croquis sur notre site troispourcent. --- Au rez-de-chaussée : - 1 entrée - 1 salon/salle à manger (~30m2) équipé d'un poele à bois. - 1 cuisine (~14m2) avec un accès à la terrasse (~18,5m2). - 1 toilette séparé équipé d'un lave-main. - 1 salle d'eau (douche, lavabo, emplacement machine à laver). -- Au 1er étage: - 1 palier. -- 1 dégagement. -- 4 chambres (~15m2- 14m2-14M2-10m2) -- 1 comble (accès par esca-trappe dans le dégagement). -- Au Sous/sol : - 1 cave avec accès sous la terrasse (espace de stockage). --Extérieur: - 1 grande terrasse avec accès au jardin et grand espace de stockage en dessous. - 1 beau jardin d'environ 300m2. - 1 petite dépendance attenante à la maison équipée d'un deuxième espace de stockage (remise). - 1 garage extérieur en bois. - Cave complète (hauteur ~1,70m) avec accès sous la terrasse. --- Informations diverses: - Proche toutes commodités (gare, commerces, cabinet médical, école.....). - Chauffage électrique (inertie) et poeles à bois. - Fenêtres bois et pvc. - Prévoir travaux de rénovation (cuisine, salle d'eau, électricité, isolation, murs, sols, plafonds...). - DPE: G. - Logement à consommation énergétique excessive : classe G. -- Principales distances: Hochfelden: 13 min, 13 km. Saverne: 8 min, 5 km. Truchtersheim: 25 min, 24 km. Brumath: 23 min, 31 km Schilt. Parc Euro Entrep: 30 min, 44 km. Strasbourg-centre: 37 min, 51 km. Contactez Sandrine ROTH au [Coordonnées masquées]. Du lundi au samedi de 9h00 à 19h00 . -- Agence Immobilière ROTH IMMOBILIER Sarl, 3%.COM, RCS 803 863 638. -- Agence et vitrines à Hochfelden, siège à Gimbrett-Kochersberg. -- Réseau national à honoraires réduits: 3% TTC.
Les informations sur les risques auxquels ce bien est exposé sont disponibles sur le site Géorisques : www.georisques.gouv.fr - Annonce rédigée et publiée par un Agent Mandataire -
Voir plus

Référence: 56_V1000057510
Honoraires d'agence de 3.09% à la charge de l'acquéreur
DPE
A
B
C
D
E
F
G
GES
A
B
C
D
E
F
G

Prêt immobilier

Vous souhaitez connaître votre capacité d’emprunt et trouver le meilleur crédit immobilier ?
Réaliser une simulation gratuite

Maison à STEINBOURG
Maison à STEINBOURG
Maison à STEINBOURG
Maison à STEINBOURG
Maison à STEINBOURG
Maison à STEINBOURG
Maison à STEINBOURG
Maison à STEINBOURG
Maison à STEINBOURG
Maison à STEINBOURG
Maison à STEINBOURG
Maison à STEINBOURG
Maison à STEINBOURG
Maison à STEINBOURG
Maison à STEINBOURG
Maison à STEINBOURG
Maison à STEINBOURG
Maison à STEINBOURG
Maison à STEINBOURG
Maison à STEINBOURG
Maison à STEINBOURG
Maison à STEINBOURG
Maison à STEINBOURG
Ce site est protégé par reCAPTCHA la Politique de confidentialité et les Conditions d’utilisation de Google s’appliquent.
Obtenir un prêt immobilier au meilleur taux ?

En poursuivant votre navigation sans modifier vos paramètres, vous acceptez l'utilisation de cookies susceptibles de réaliser des statistiques de visite. Cliquez ici pour plus d'informations