Bénéficiez des services de nos partenaires locaux soigneusement sélectionnés
pour vous accompagner dans votre parcours d'achat immobilier

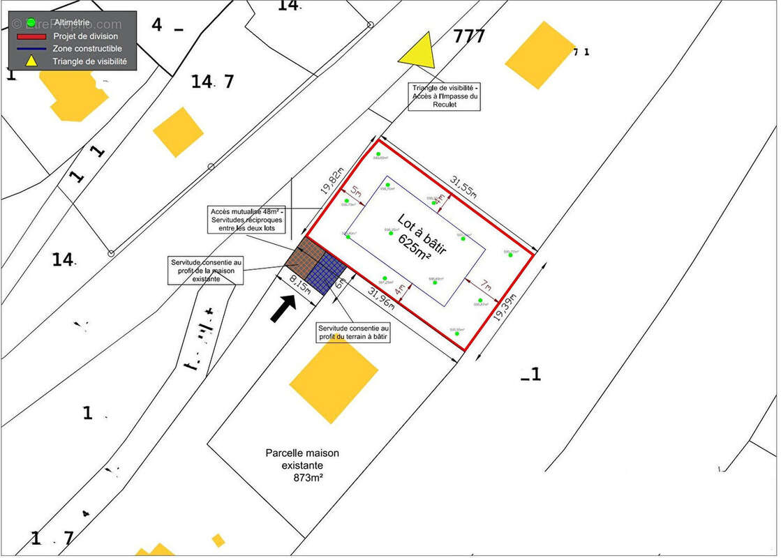
Terrain crozet 625 m2

— Crozet 01170 —
330 000 €
625 m²
jardin

Nos partenaires locaux
Situation dominante à crozet, pour ce joli terrain de 625 m² viablisé libre constructeur avec vue sur les montagnes et prairies (Agricole protégé) . Il se situe en zone Ugp1. L'emprise au sol maximale des constructions est de 18 % de la superficie de l'unité foncière. * les honoraires de l'agence sont à la charge du vendeur

Prêt immobilier

Vous souhaitez connaître votre capacité d’emprunt et trouver le meilleur crédit immobilier ?
Réaliser une simulation gratuite

Terrain à CROZET
Terrain à CROZET
Terrain à CROZET
Ce site est protégé par reCAPTCHA la Politique de confidentialité et les Conditions d’utilisation de Google s’appliquent.
Obtenir un prêt immobilier au meilleur taux ?

En poursuivant votre navigation sans modifier vos paramètres, vous acceptez l'utilisation de cookies susceptibles de réaliser des statistiques de visite. Cliquez ici pour plus d'informations