Maison neuve individuelle - 4 chambres

— Condette 62360 —
545 000 €
129 m² / 737 m²
5 pièces
parkingjardin

Niché entre la forêt d’Hardelot et les dunes d’Ecault, le Courtil de Condette propose un espace de vie à l'architecture soignée, parfaitement intégrée à son environnement.
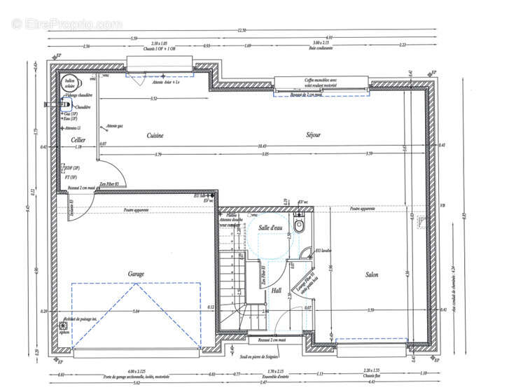
Le bien que nous vous proposons au sein de cette opération est une maison individuelle de 129.29m2 habitables pour 173.10m2 de surface utile (Modèle FAIRWAY) bâtie sur une parcelle de 737 m2 (lot 2)
Elle se compose:
Au rez-de-chaussée :
- D'un grand salon/séjour ouvert sur la cuisine de 54m2, d'une salle d'eau avec WC et d'un cellier donnant sur le garage.
Au première étage :
- De quatre chambres spacieuses et d’une salle de bain avec baignoire et WC.
Elle dispose également, à l’extérieur, d’un jardin privatif d'environ 563 m2.

S'agissant d'une construction neuve, l'aménagement intérieur y est modulable et arrêté définitivement, selon vos souhaits, auprès du promoteur.
La construction respecte la règlementation environnementale 2020 (RE2020) assurant un confort optimal tant en hiver qu'en été.

Les travaux d'ensemble ont démarré (septembre 2024) et la livraison est prévue au quatrième trimestre 2025. N'hésitez pas à nous contacter pour plus de renseignement !
Voir plus

Honoraires à la charge du vendeur.
Barème des honoraires

Prêt immobilier

Vous souhaitez connaître votre capacité d’emprunt et trouver le meilleur crédit immobilier ?
Réaliser une simulation gratuite

Maison à CONDETTE
Maison à CONDETTE
Maison à CONDETTE
Maison à CONDETTE
Maison à CONDETTE
Ce site est protégé par reCAPTCHA la Politique de confidentialité et les Conditions d’utilisation de Google s’appliquent.
Obtenir un prêt immobilier au meilleur taux ?

En poursuivant votre navigation sans modifier vos paramètres, vous acceptez l'utilisation de cookies susceptibles de réaliser des statistiques de visite. Cliquez ici pour plus d'informations