À vendre : terrain avec permis de construire accordé tassin la demi-lune

— Tassin-La-Demi-Lune 69160 —
299 000 €
574 m²
jardin

À vendre : Terrain avec permis de construire accordé Tassin la Demi-Lune
Situé dans un secteur recherché de Tassin la Demi-Lune, à proximité des commodités et dans un environnement agréable, ce terrain de 574 m2 représente une belle opportunité pour concrétiser votre projet immobilier.
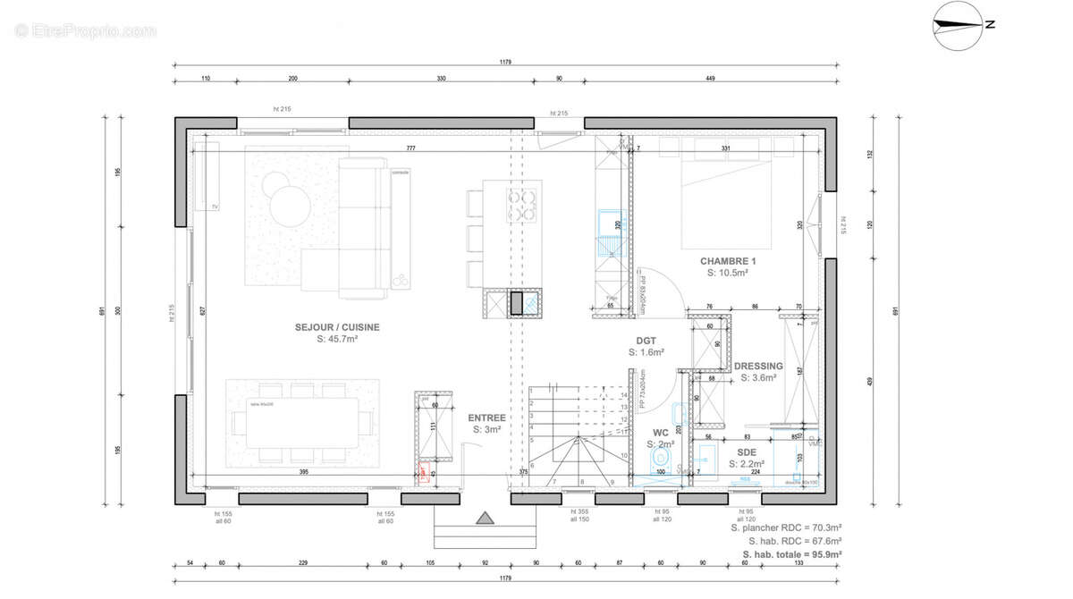
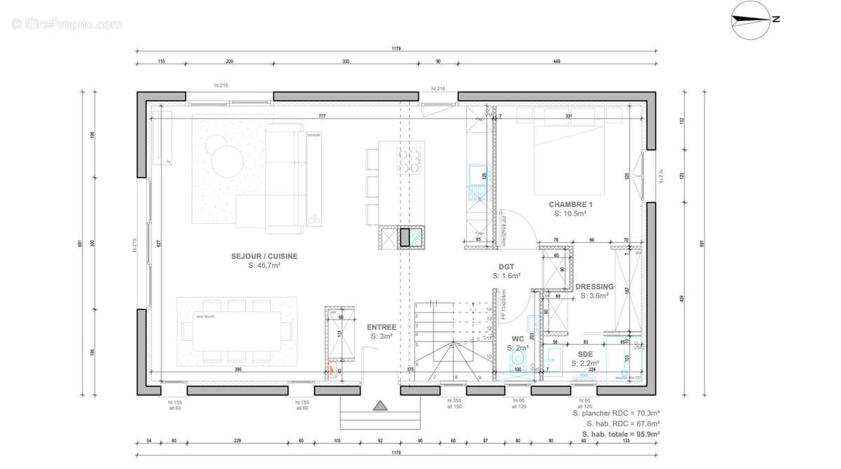
Un permis de construire accordé permet l’édification d’une maison de 96 m2, comprenant :

Une suite parentale,
Deux chambres à l’étage,
Un espace de vie fonctionnel et lumineux.

Idéal pour un projet clé en main, sans attente liée aux démarches administratives !
Ne manquez pas cette opportunité ! Contactez-nous dès maintenant pour plus d’informations et organiser une visite. Hugo MARQUES BABIN 06x33x72x76x98
Voir plus

Prêt immobilier

Vous souhaitez connaître votre capacité d’emprunt et trouver le meilleur crédit immobilier ?
Réaliser une simulation gratuite

Terrain à TASSIN-LA-DEMI-LUNE
Terrain à TASSIN-LA-DEMI-LUNE
Terrain à TASSIN-LA-DEMI-LUNE
Terrain à TASSIN-LA-DEMI-LUNE
Terrain à TASSIN-LA-DEMI-LUNE
Terrain à TASSIN-LA-DEMI-LUNE
Terrain à TASSIN-LA-DEMI-LUNE
Terrain à TASSIN-LA-DEMI-LUNE
Ce site est protégé par reCAPTCHA la Politique de confidentialité et les Conditions d’utilisation de Google s’appliquent.
Obtenir un prêt immobilier au meilleur taux ?

En poursuivant votre navigation sans modifier vos paramètres, vous acceptez l'utilisation de cookies susceptibles de réaliser des statistiques de visite. Cliquez ici pour plus d'informations