Bénéficiez des services de nos partenaires locaux soigneusement sélectionnés
pour vous accompagner dans votre parcours d'achat immobilier

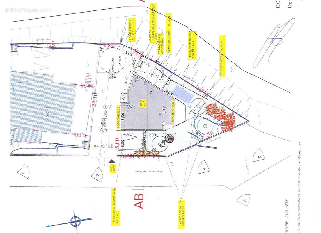
Bandol terrain à bâtir quartier la peyrière

— Bandol 83150 —
315 000 €
428 m²
jardin

Nos partenaires locaux
Situé dans le quartier recherché de La Peyrière, ce terrain constructible de 428 m2 bénéficie d’un emplacement privilégié. À seulement 260 mètres des commerces et d’un supermarché, il se trouve également à 600 mètres de la gare, facilitant ainsi les déplacements. Le centre-ville et le port sont accessibles en moins de 10 minutes, tout comme les écoles et la crèche.
Ce terrain plat est vendu avec un permis de construire purgé de tout recours pour la réalisation de deux appartements d’une superficie totale de 137 m2. Libre de constructeur, il sera clôturé et viabilisé, offrant ainsi une base idéale pour concrétiser votre projet immobilier.
Ne manquez pas cette opportunité rare sur le secteur
Voir plus

Référence: 7605LV
Bien en copropriété. Nombre de lots : 83.
Honoraires à la charge du vendeur.
Barème des honoraires

Prêt immobilier

Vous souhaitez connaître votre capacité d’emprunt et trouver le meilleur crédit immobilier ?
Réaliser une simulation gratuite

Terrain à BANDOL
Terrain à BANDOL
Ce site est protégé par reCAPTCHA la Politique de confidentialité et les Conditions d’utilisation de Google s’appliquent.
Obtenir un prêt immobilier au meilleur taux ?

En poursuivant votre navigation sans modifier vos paramètres, vous acceptez l'utilisation de cookies susceptibles de réaliser des statistiques de visite. Cliquez ici pour plus d'informations