Bénéficiez des services de nos partenaires locaux soigneusement sélectionnés
pour vous accompagner dans votre parcours d'achat immobilier

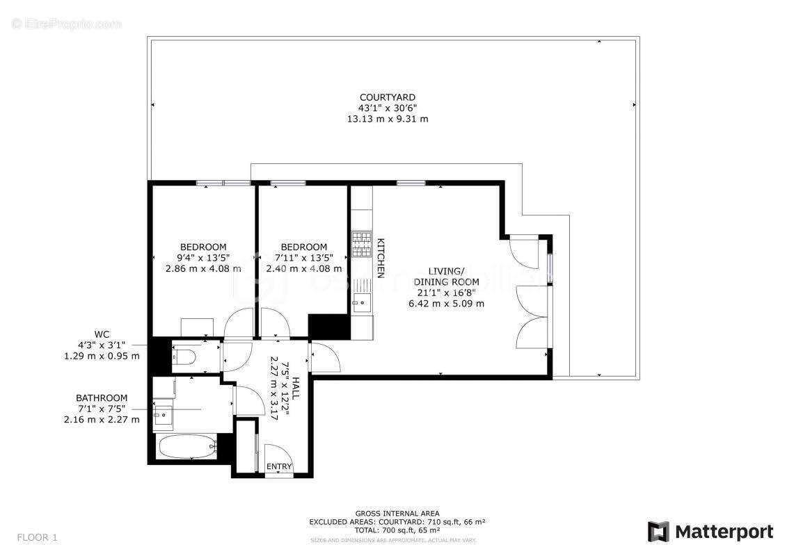
Appartement f3 de 2021 avec jardin

— Vaires-Sur-Marne 77360 —
248 500 €
60 m²
3 pièces

Nos partenaires locaux
Venez découvrir ce bel appartement, très LUMINEUX et son jardin de 122m².
Vaires-sur-Marne, dans une résidence de STANDING de 2021, calme et sécurisée, situé tout proche de la base olympique.
A proximités de toutes commodités: écoles, commerces, Gare Vaires/Torcy à 10 minutes à pied.

Il se compose d'une entrée avec rangements, d'un salon ouvert sur une cuisine moderne équipée, de deux chambres donnant également sur le jardin, une salle de bain et WC séparé.
Un emplacement de parking en sous-sol.
Un jardin exposition SUD, faisant le tour de l'appartement.

Les atouts:
- Jardin de 122m²,
- Aucun travaux à prévoir,
-Décoration soignée,
- DPE C,
- Local à vélo,
- Résidence calme et sécurisée,
***Accordez-vous une simple visite et laissez-vous charmer !

Cette annonce référence 270222 vous est présentée par votre agent commercial BSK Immobilier TOMMY LAVIE (EI) immatriculé au RSAC de MEAUX (77100) sous le numéro 81796080000032.

Prix du bien : 248 500,00 €
Les honoraires d'agence sont à la charge du vendeur.

A propos de la copropriété :
Pas de procédure en cours.
Nombre de lots : 2
Charges prévisionnelles annuelles : 1 200,00 €

A propos des performances énergétiques :
Date de réalisation du diagnostic énergétique : 10/11/2021
Score DPE : 89 kWhEP/m²/an
Score GES : 19 kgepCO2/m²/an
Montant estimé des dépenses annuelles d'énergie pour un usage standard : entre 515.00 € et 696.00 € par an. Prix moyens des énergies indexés sur l'année 2021 (abonnements compris).

Les informations sur les risques auxquels ce bien est exposé sont disponibles sur le site Géorisques : www.georisques.gouv.fr
Voir plus

Référence: 270222
Bien en copropriété. Nombre de lots : 2. Charges de copropriété : 100 €.
Honoraires à la charge du vendeur.
DPE
A
B
C
D
E
F
G
GES
A
B
C
D
E
F
G

Prêt immobilier

Vous souhaitez connaître votre capacité d’emprunt et trouver le meilleur crédit immobilier ?
Réaliser une simulation gratuite

Appartement à VAIRES-SUR-MARNE
Appartement à VAIRES-SUR-MARNE
Appartement à VAIRES-SUR-MARNE
Appartement à VAIRES-SUR-MARNE
Appartement à VAIRES-SUR-MARNE
Appartement à VAIRES-SUR-MARNE
Appartement à VAIRES-SUR-MARNE
Appartement à VAIRES-SUR-MARNE
Appartement à VAIRES-SUR-MARNE
Appartement à VAIRES-SUR-MARNE
Appartement à VAIRES-SUR-MARNE
Appartement à VAIRES-SUR-MARNE
Ce site est protégé par reCAPTCHA la Politique de confidentialité et les Conditions d’utilisation de Google s’appliquent.
Obtenir un prêt immobilier au meilleur taux ?

En poursuivant votre navigation sans modifier vos paramètres, vous acceptez l'utilisation de cookies susceptibles de réaliser des statistiques de visite. Cliquez ici pour plus d'informations