Appartement 2 pièces, 59m² + cellier et balcons. idéal investisseurs et couple !

— Villeneuve-Saint-Georges 94190 —
143 000 €
59 m²
2 pièces

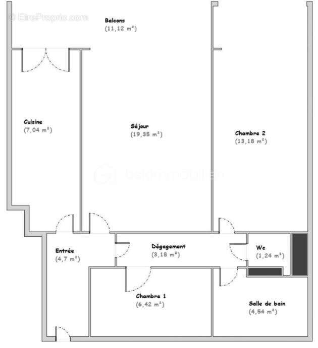
Au 1er étage, appartement RÉNOVÉ et LUMINEUX de 59m². 2 pièces, dont un salon et une chambre + un cellier de 7m². Entrée avec dégagement, couloir, cuisine, salle de bain, wc séparés. BALCON filant le long de la cuisine et du salon, un autre balcon pour la chambre. En sus, une cave. Place de parking (portail motorisé) avec emplacement libre.
Les + : Ravalement réalisé en 2020. Bus (427 et 450) et commerces à proximité. Gare RER D Villeneuve-Saint-Georges et Villeneuve Triage. 500m à l'ouest du Parc Départemental de la Plage-Bleue.

Cette annonce référence 270055 vous est présentée par votre agent commercial BSK Immobilier VANIA PERELMAN (EI) immatriculé au RSAC de CRETEIL (94000) sous le numéro 87929648100028.

Prix du bien : 143 000,00 €
Les honoraires d'agence sont à la charge du vendeur.

A propos de la copropriété :
Pas de procédure en cours.
Nombre de lots : 2
Charges prévisionnelles annuelles : 2 340,00 €

A propos des performances énergétiques :
Date de réalisation du diagnostic énergétique : 11/01/2024
Score DPE : 174 kWhEP/m²/an
Score GES : 37 kgepCO2/m²/an
Montant estimé des dépenses annuelles d'énergie pour un usage standard : entre 560.00 € et 810.00 € par an. Prix moyens des énergies indexés sur l'année 2021 (abonnements compris).

Les informations sur les risques auxquels ce bien est exposé sont disponibles sur le site Géorisques : www.georisques.gouv.fr
Voir plus

Référence: 270055
Bien en copropriété. Nombre de lots : 2. Charges de copropriété : 195 €.
Honoraires à la charge du vendeur.
DPE
A
B
C
D
E
F
G
GES
A
B
C
D
E
F
G

Prêt immobilier

Vous souhaitez connaître votre capacité d’emprunt et trouver le meilleur crédit immobilier ?
Réaliser une simulation gratuite

Appartement à VILLENEUVE-SAINT-GEORGES
Appartement à VILLENEUVE-SAINT-GEORGES
Appartement à VILLENEUVE-SAINT-GEORGES
Appartement à VILLENEUVE-SAINT-GEORGES
Appartement à VILLENEUVE-SAINT-GEORGES
Appartement à VILLENEUVE-SAINT-GEORGES
Appartement à VILLENEUVE-SAINT-GEORGES
Appartement à VILLENEUVE-SAINT-GEORGES
Appartement à VILLENEUVE-SAINT-GEORGES
Appartement à VILLENEUVE-SAINT-GEORGES
Ce site est protégé par reCAPTCHA la Politique de confidentialité et les Conditions d’utilisation de Google s’appliquent.
Obtenir un prêt immobilier au meilleur taux ?

En poursuivant votre navigation sans modifier vos paramètres, vous acceptez l'utilisation de cookies susceptibles de réaliser des statistiques de visite. Cliquez ici pour plus d'informations