Bénéficiez des services de nos partenaires locaux soigneusement sélectionnés
pour vous accompagner dans votre parcours d'achat immobilier

Appartement 700m² à guemene-penfao

— Guemene-Penfao 44290 —
344 000 €
700 m² / 4 153 m²
10 pièces

Nos partenaires locaux
Iad France - Jean-Marie Julaud vous propose : Bâtiment professionnel de 2007 avec appartement de fonction le tout avec superficie de 700 m².

Situé dans la zone artisanale de Guémené-Penfao, ce bâtiment professionnel polyvalent offre une opportunité unique d'allier espace de travail et confort résidentiel. Idéal pour les entreprises souhaitant optimiser leur organisation tout en disposant d'un logement sur place.

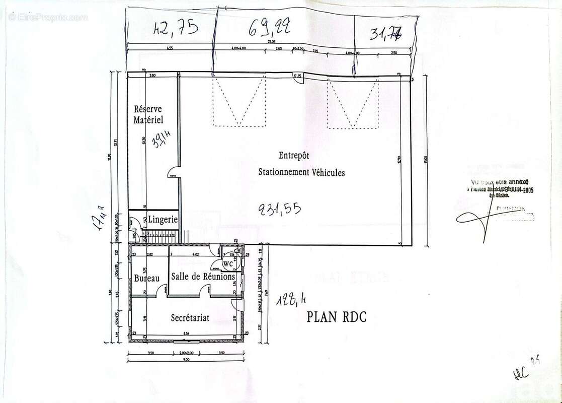
Le rez-de-chaussée se compose d'un secrétariat spacieux, de deux bureaux fermés, d'une grande salle de réunion, ainsi que d'un entrepôt adapté pour le stationnement de véhicules. Vous y trouverez également une réserve de matériel et une lingerie.

À l'étage, un appartement lumineux comprend deux chambres et un espace de vie confortable, idéal pour un logement de fonction.

Le bâtiment est fonctionnel avec une agencement optimisé pour une activité professionnelle diversifiée. Polyvalent, il est adapté à de nombreux secteurs tels que les bureaux, l'artisanat ou le stockage. Son accessibilité est facilitée grâce à un accès aisé pour les véhicules utilitaires, et il se situe à proximité des grands axes.

Loyer : 2 800 ¤ par mois bail 3,6,9.


Honoraires d'agence à la charge du vendeur.
Bien non soumis au DPE. Les informations sur les risques auxquels ce bien est exposé, y compris l'obligation légale de débroussaillement, sont disponibles sur le site Géorisques : www.georisques.gouv.fr.
La présente annonce immobilière a été rédigée sous la responsabilité éditoriale de M Jean-Marie Julaud mandataire indépendant en immobilier (sans détention de fonds), agent commercial de la SAS I@D France immatriculé au RSAC de SAINT-NAZAIRE sous le numéro 905211801, titulaire de la carte de démarchage immobilier pour le compte de la société I@D France SAS.
Informations LOI ALUR :
Honoraires charge vendeur. (gedeon_6727_30018278)
Voir plus

Référence: 1615590
Honoraires à la charge du vendeur.

Prêt immobilier

Vous souhaitez connaître votre capacité d’emprunt et trouver le meilleur crédit immobilier ?
Réaliser une simulation gratuite

Photo 1 - Appartement à GUEMENE-PENFAO
Photo 1
Photo 2 - Appartement à GUEMENE-PENFAO
Photo 2
Photo 3 - Appartement à GUEMENE-PENFAO
Photo 3
Ce site est protégé par reCAPTCHA la Politique de confidentialité et les Conditions d’utilisation de Google s’appliquent.
Obtenir un prêt immobilier au meilleur taux ?

En poursuivant votre navigation sans modifier vos paramètres, vous acceptez l'utilisation de cookies susceptibles de réaliser des statistiques de visite. Cliquez ici pour plus d'informations